Kursy walut(PLN)    4.75 4.76 5.41 4.38
Znajdź na mapie
Typ Cena od Powierzchnia od
do do
Oferta nr 589-15928
Rodzaj obiektuLokale użytkowe
Kategoriausługowy
Typsprzedaż
Regionśląskie
MiejscowośćTarnowskie Góry
UlicaŻwirki i Wigury
WalutaPLN
Cena435 000 PLN
Cena za m2 4 123 PLN
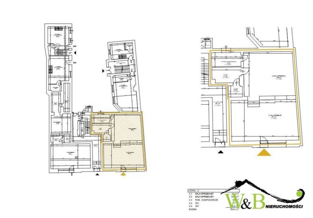
Powierzchnia105.5
Pokoje2
Materiałdowlona
Nr oferty589-15928
Data2026-02-20
Licencja zawodowa22575
AgentKlary Aleksandra
Telefon608072298
Emailbiuro@wb.nieruchomosci.pl
Licencja agenta22575
Innewoda,gaz,prąd

Opis

Na sprzedaż , lokal użytkowy w Centrum Tarnowskich Gór.
Główne zalety lokalu:
- centralna lokalizacja
- ruch pieszy przy lokalu
- parking przed kamienicą
- czynna umowa najmu (umowa trwająca od 2021r)
Układ lokalu ,
- sala sprzedaży z witryną 48,1m2
- sala sprzedaży 39,6m2
- pomieszczenie gospodarcze
- toaleta
Podana cena jest ceną netto, do której doliczyć należy VAT wg stawki 23%.
Zapraszamy na prezentację.
Powyższa oferta ma charakter informacyjny i nie stanowi oferty handlowej w rozumieniu art.66 1 kodeksu cywilnego oraz innych właściwych przepisów prawnych.
Jako biuro oferujemy Państwu kompleksową obsługę poprzez:
- wybór najodpowiedniejszej dla Państwa nieruchomości,
- pomoc w uzyskaniu najbardziej korzystnego finansowania
- pomoc w załatwieniu wszelkich formalności związanych z przeniesieniem własności dokumenty do aktu notarialnego, przepisanie mediów, kwestie związane z podatkiem od nieruchomości).
Zapraszamy do współpracy.
Zachęcamy do zapoznania się z innymi naszymi ofertami na www.wb.nieruchomosci.pl


Mapa

Poleć ofertę znajomemu!

Twoje imię i nazwisko:
Twój adres e-mail:
Adres e-mail znajomego:
Treść:
  • Oferta
    Oferta
  • Oferta
    Oferta
  • Oferta
    Oferta
  • Oferta
    Oferta
  • Oferta
    Oferta
    
  
  


W&B Nieruchomości s.c.
(zobacz oferty biura)
(zobacz pracowników biura)
ul. Rynek 2/1
42 - 60 Tarnowskie Góry
Pokaż dane kontaktowe