Kursy walut(PLN)    4.75 4.76 5.41 4.38
Znajdź na mapie
Typ Cena od Powierzchnia od
do do
Oferta nr 92-495250874162
Rodzaj obiektuMieszkania
Kategoriamieszkanie
Typsprzedaż
Regiondolnośląskie
MiejscowośćDobrzykowice
UlicaMieszkanie Osiedle Brylantowe
WalutaPLN
Cena508 000 PLN
Cena za m2 10 191 PLN
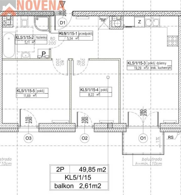
Powierzchnia49.85
Pokoje3
Piętro1
Materiałdowlona
Rok budowy2026
Nr oferty92-495250874162
Data2026-02-17
Licencja zawodowa21088
AgentDutczak Robert
Telefon510 920 757
Emailrobert@novena.pl
Licencja agenta21088
Innewoda,gaz,prąd

Opis

KONTAKT Robert Dutczak: 510 920 757,
od poniedziałku do piątku w godz. 9.00 do 18.00
0% PCC
Do zaoferowania nowoczesne mieszkanie 3-pokojowe o pow.49.85m2 na Osiedlu Brylantowym - Dobrzykowice ,
Przestronne i funkcjonalne mieszkanie w nowej inwestycji deweloperskiej Osiedle Brylantowe - kameralny kompleks składający się z czterech nowoczesnych budynków o wysokim standardzie wykonania.
Mieszkanie cechuje się:
- atrakcyjnym układem pomieszczeń - idealnym zarówno dla singla, pary, jak i rodziny
- dużymi oknami zapewniającymi naturalne światło
- balkonem o pow. 2.6m2
- spokojnym otoczeniem zieleni i miejscem zabaw dla dzieci
- funkcjonalną przestrzenią o 49.85m2
Lokalizacja i otoczenie:
- świetna komunikacja z Wrocławiem - dojazd do centrum ok. 15 km
-
,ok. 150 m od przystanku autobusowego
- w okolicy nowoczesna szkoła, sklepy (Carrefour, Biedronka, Pepco, Sinsay, Action) i stacja PKP
-
,pełna infrastruktura usługowo-handlowa w bezpośrednim sąsiedztwie inwestycji
Mieszkanie sprzedawane jest w podwyższonym stanie deweloperskim, który obejmuje m.in.:
wysokiej klasy okna 5-komorowe DRUTEX
drzwi wejściowe GERDA
biały montaż instalacji elektrycznej
wentylację mechaniczną
instalacje sieci teleinformatycznej
pełne przyłącza mediów: prąd, woda, kanalizacja, gaz
Na terenie osiedla przewidziane są miejsca parkingowe ogólnodostępne, z możliwością wykupienia prywatnego miejsca postojowego i komórki lokatorskiej. ,
Gorąco zapraszam do kontaktu po więcej informacji oraz na prezentacje!
Jeżeli nie jesteś zainteresowany tą ofertą, to w naszej bazie mamy dostępnych wiele podobnych nieruchomości.
Bezpłatnie pomagamy w udzieleniu kredytu na zakup nieruchomości.
Naszym Klientom oferujemy również pomoc prawną.
Powyższa oferta ma charakter informacyjny i nie stanowi oferty handlowej w rozumieniu art.66 1 Kodeksu Cywilnego.


Poleć ofertę znajomemu!

Twoje imię i nazwisko:
Twój adres e-mail:
Adres e-mail znajomego:
Treść:
  • Oferta
    Oferta
  • Oferta
    Oferta
  • Oferta
    Oferta
  • Oferta
    Oferta
  • Oferta
    Oferta
  • Oferta
    Oferta
  • Oferta
    Oferta
  • Oferta
    Oferta
  • Oferta
    Oferta
  • Oferta
    Oferta
  • Oferta
    Oferta
  • Oferta
    Oferta
    
  
  


Novena s.c. Dawid Cygański, Małgorzata Uliasz
(zobacz oferty biura)
(zobacz pracowników biura)
ul. Inowrocławska 21/1
53-643 Wrocław
Pokaż dane kontaktowe