Kursy walut(PLN)    4.75 4.76 5.41 4.38
Znajdź na mapie
Typ Cena od Powierzchnia od
do do
Oferta nr 781-1236
Rodzaj obiektuMieszkania
Kategoriamieszkanie
Typsprzedaż
Regionmazowieckie
MiejscowośćPiastów
UlicaWarszawska
WalutaPLN
Cena948 000 PLN
Cena za m2 11 460 PLN
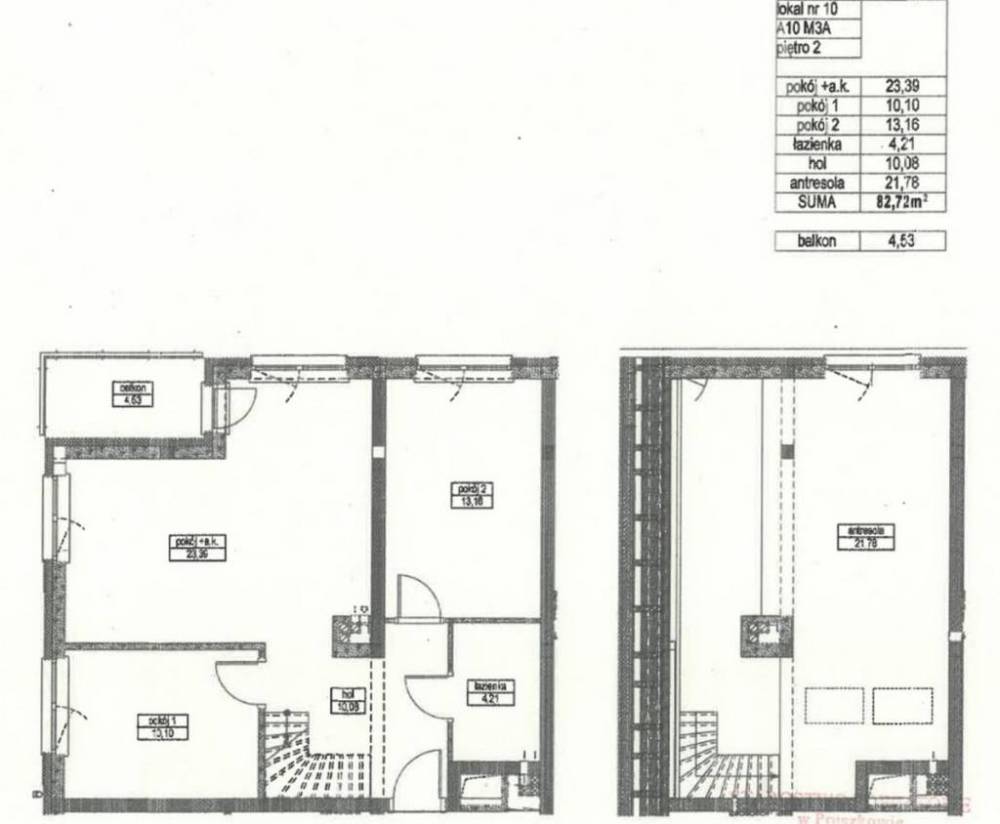
Powierzchnia82.72
Pokoje4
Piętro2
Materiałdowlona
Rok budowy2025
Nr oferty781-1236
Data2026-02-13
Agent. Michał
Telefon578 100 058
Emailbiuro@high-life.pl
Innesiła,woda,prąd,meble

Opis

MIESZKANIE JEST JUŻ ZAREZERWOWANE
 Kupujący nie płaci prowizji i podatku PCC.
Piękne mieszkanie o wysokim standardzie przy ulicy Warszawskiej.
4 pokoje, 2 łazienki o łącznej powierzchni użytkowej 82,71 m2
Główne atuty mieszkania to:
- ogrzewanie podłogowe we wszystkich pomieszczeniach
- podłączenie pod klimatyzacje w każdym pokoju
- wykończona łazienka ( płytki, kabina, deszczownica)
Dodatkowo płatne miejsce postojowe:
podwójne w garażu podziemnym w cenie 59 000 zł lub
pojedyncze 39 000 zł.
OKOLICA
Centrum handlowe Kaufland oddalone około 200 m od inwestycji.
Do stacji SKM Piastów jak i SKM Warszawa Niedźwiadek około 10-12 min spacerem.
Szkoła podstawowa w odległości 400 m, przedszkole 300 m.

PODANE NA MAPIE LOKALIZACJE NIERUCHOMOŚCI SĄ PRZYBLIŻONE, WSKAZUJĄ JEDYNIE OKOLICE NIERUCHOMOŚCI. DOKŁADNA LOKALIZACJA NIERUCHOMOŚCI JEST WSKAZYWANA PO UMÓWIENIU SPOTKANIA, W TRAKCIE JEJ OSOBISTEJ PREZENTACJI PRZEZ AGENTA.
Ogłoszenie nieruchomości ma jedynie charakter informacyjny i może ulegać zmianom.
Ogłoszenie nie stanowi oferty handlowej w rozumieniu art. 66 1 kodeksu cywilnego.


Mapa

Poleć ofertę znajomemu!

Twoje imię i nazwisko:
Twój adres e-mail:
Adres e-mail znajomego:
Treść:
  • Oferta
    Oferta
  • Oferta
    Oferta
  • Oferta
    Oferta
  • Oferta
    Oferta
  • Oferta
    Oferta
  • Oferta
    Oferta
  • Oferta
    Oferta
  • Oferta
    Oferta
  • Oferta
    Oferta
  • Oferta
    Oferta
  • Oferta
    Oferta
  • Oferta
    Oferta
    
  
  


HIGH-LIFE
(zobacz oferty biura)
(zobacz pracowników biura)
ul. Radnych 10/44
05-800 Pruszków
Pokaż dane kontaktowe