Kursy walut(PLN)    4.75 4.76 5.41 4.38
Znajdź na mapie
Typ Cena od Powierzchnia od
do do
Oferta nr 781-1272
Rodzaj obiektuMieszkania
Kategoriamieszkanie
Typsprzedaż
Regionmazowieckie
MiejscowośćPiastów
UlicaBrandta
WalutaPLN
Cena1 459 000 PLN
Cena za m2 11 744 PLN
Powierzchnia124.23
Pokoje5
Materiałpustak
Rok budowy2026
Nr oferty781-1272
Data2026-04-13
Agent. Michał
Telefon578 100 058
Emailbiuro@high-life.pl
Innesiła,woda,gaz,prąd,meble

Opis

STAN DEWELOPERSKI, BEZ PROWIZJI, BEZ PCC
Nowa inwestycja w trakcie realizacji:
Nieruchomość znajduje się blisko granicy z Warszawą (około 1 km). Deweloper jest lokalną firmą, która działa w rejonie Pruszkowa i Piastowa, a początek działalności przypada na rok 2010. Od tego czasu zrealizowano wiele inwestycji w tym popularnym podwarszawskim rejonie.
Tym razem przedstawiam kameralną inwestycję 2 budynków w zabudowie bliźniaczej położonej przy w Piastowie ul. Brandta 17 
Termin oddania: IV kw. 2026 roku.
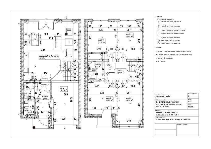
Ogłoszenie dotyczy ostatniego już lokalu skrajnego w inwestycji o projektowanej pow. 124,23 m2, z działką do korzystania o pow. 391 m2
Lokal posiada garaż, dodatkowe miejsce postojowe przed budynkiem oraz duży ogródek.
Ponadto do wyłącznego korzystania pozostaje strych o pow. ok. 30 m2 jako powierzchnia do przechowywania zbędnych rzeczy.
Inwestycja będzie prowadzona w ramach Deweloperskiego Funduszu Gwarancyjnego (DFG),rachunek powierniczy z dodatkowym zabezpieczeniem środków Nabywcy.
W budynku na parterze znajduje się strefa dzienna - salonem z aneksem kuchennym, z bezpośrednim wyjściem na ogród, łazienka, garaż i korytarz. Na piętrze mieszczą się 4 sypialnie, korytarz, łazienka . Oddzielenie strefy dziennej od prywatnej oraz przemyślany układ pomieszczeń sprawia, że wszystkie mieszkania są bardzo komfortowe i niezwykle funkcjonalne.
Opis Inwestycji
Spokojna okolica
W bliskim sąsiedztwie: szkoła podstawowa (około 100 m) przedszkole, 
Stacje SKM/PKP Piastów około 7/8 min spacerem 
Pełny stan deweloperski, wraz z piecem gazowym i osprzętem elektrycznym.
Ogrzewanie podłogowe rozprowadzone po całym lokalu, w tym także w garażu.
Garaż + 1 miejsce postojowe i duży ogródek.
Strych o pow. ok. 30 m2
Brama wjazdowa oraz garażowa z napędem.
Wszystkie media miejskie

PODANE NA MAPIE LOKALIZACJE NIERUCHOMOŚCI SĄ PRZYBLIŻONE, WSKAZUJĄ JEDYNIE OKOLICE NIERUCHOMOŚCI. DOKŁADNA LOKALIZACJA NIERUCHOMOŚCI JEST WSKAZYWANA PO UMÓWIENIU SPOTKANIA, W TRAKCIE JEJ OSOBISTEJ PREZENTACJI PRZEZ AGENTA.
Ogłoszenie nieruchomości ma jedynie charakter informacyjny i może ulegać zmianom.
Ogłoszenie nie stanowi oferty handlowej w rozumieniu art. 66 1 kodeksu cywilnego.


Mapa

Poleć ofertę znajomemu!

Twoje imię i nazwisko:
Twój adres e-mail:
Adres e-mail znajomego:
Treść:
  • Oferta
    Oferta
  • Oferta
    Oferta
  • Oferta
    Oferta
  • Oferta
    Oferta
  • Oferta
    Oferta
  • Oferta
    Oferta
  • Oferta
    Oferta
  • Oferta
    Oferta
    
  
  


HIGH-LIFE
(zobacz oferty biura)
(zobacz pracowników biura)
ul. Radnych 10/44
05-800 Pruszków
Pokaż dane kontaktowe