Kursy walut(PLN)    4.75 4.76 5.41 4.38
Znajdź na mapie
Typ Cena od Powierzchnia od
do do
Oferta nr 13-44372
Rodzaj obiektuMieszkania
Kategoriamieszkanie
Typsprzedaż
Regionmazowieckie
MiejscowośćWarszawa
DzielnicaRembertów
UlicaChełmżyńska
WalutaPLN
Cena72 394 PLN
Cena za m2 1 205 PLN
Powierzchnia60.08
Pokoje3
Piętro4
Materiałdowlona
Rok budowy2025
Nr oferty13-44372
Data2026-03-30
Licencja zawodowa4145
AgentTomczyk Marek
Emailm.tomczyk.nieruchomosci@gmail.com
Licencja agenta4145
Innemeble

Opis

3-pokojowe nowoczesne mieszkanie z Balkonem - 4. piętro - , Rembertów, Chełmżyńska
,
Cena: 723 964 zł
Bezpośrednio od dewelopera
Na sprzedaż komfortowe, 3-pokojowe mieszkanie o powierzchni 60,08 m, położone na 4 piętrze nowoczesnego budynku z windą, przy ulicy Chełmżyńskiej w warszawskim Rembertowie.
Przemyślany układ pomieszczeń zapewnia wygodę zarówno rodzinie, jak i parze czy singlowi poszukującemu przestrzeni do życia i pracy w jednym miejscu.
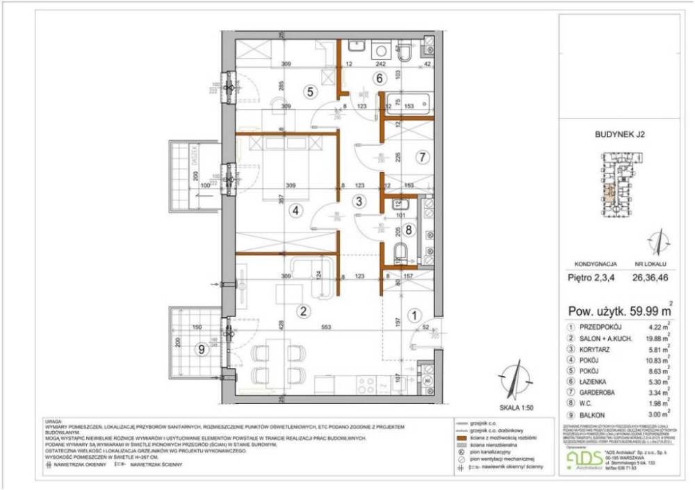
Rozkład pomieszczeń:
Salon z aneksem kuchennym , - 19,88 m
Przedpokój - 4,22 m ,
Korytarz - 5,81 m
Pokój - 10,83 m , ,
Pokój - 8,63 m ,
Łazienka - 5,30 m , , ,
Garderoba - 3,34 m
W.C. - 1,98 m
,
Balkon- 3,00 ,m , ,
O inwestycji , , ,
Inwestycja powstaje tuż przy Lesie Rembertowskim, określanym jako `wschodnie płuca Warszawy`. To zielona, spokojna przestrzeń, która tworzy naturalną oazę sprzyjającą codziennemu wypoczynkowi. Jednocześnie dojazd do centrum Warszawy zajmuje około 20 minut, co pozwala łączyć komfort natury z wygodą miejskiego życia.
Standard i udogodnienia
Parametry techniczne
- Wysokość pomieszczeń: od 260 do 280 cm (w zależności od , kondygnacji)
- Standard wykończenia: deweloperski
- Forma własności: odrębna własność z udziałem w gruncie
Udogodnienia na terenie osiedla
- plac zabaw
- teren ogrodzony z kontrolą dostępu
- ogródki przynależne do mieszkań na parterze
- winda w każdym budynku
Otoczenie i komunikacja
- bezpośrednie sąsiedztwo Lasu Rembertowskiego
- sklepy i punkty usługowe na terenie inwestycji
- przystanek komunikacji miejskiej tuż przy osiedlu
- linia 145 (Żerań FSO - Wiatraczna)
Cennik miejsc postojowych ,
Miejsce postojowe w garażu podziemnym: 39 000 zł brutto (8% VAT)
Miejsce postojowe naziemne: 27 000 zł brutto (8% VAT)
Komórka lokatorska: 6 500 zł/m brutto (8% VAT)
Zakup miejsca w garażu podziemnym jest obowiązkowy dla mieszkań 2 i 3pokojowych.
Posiadamy również inne lokale w tej inwestycji.
Zadzwoń i umów się na prezentację!
Zamieszkaj nowocześnie, wysoko i wygodnie - z własnym tarasem, antresolą iświetnym dojazdem do centrum! ,
Kontakt:
Marek 509 165 458
Więcej ofert na stronach: kobrynski.pl, www.grewal.com.pl ,


Mapa

Poleć ofertę znajomemu!

Twoje imię i nazwisko:
Twój adres e-mail:
Adres e-mail znajomego:
Treść:
  • Oferta
    Oferta
  • Oferta
    Oferta
  • Oferta
    Oferta
    
  
  


Nieruchomości Waldemar Kobryński
(zobacz oferty biura)
(zobacz pracowników biura)
ul.Broniewskiego 28
01-771 Warszawa
Pokaż dane kontaktowe