Kursy walut(PLN)    4.75 4.76 5.41 4.38
Znajdź na mapie
Typ Cena od Powierzchnia od
do do
Oferta nr 13-44322
Rodzaj obiektuMieszkania
Kategoriamieszkanie
Typsprzedaż
Regionmazowieckie
MiejscowośćWarszawa
DzielnicaUrsus
UlicaPosag 7 Panien
WalutaPLN
Cena701 715 PLN
Cena za m2 16 300 PLN
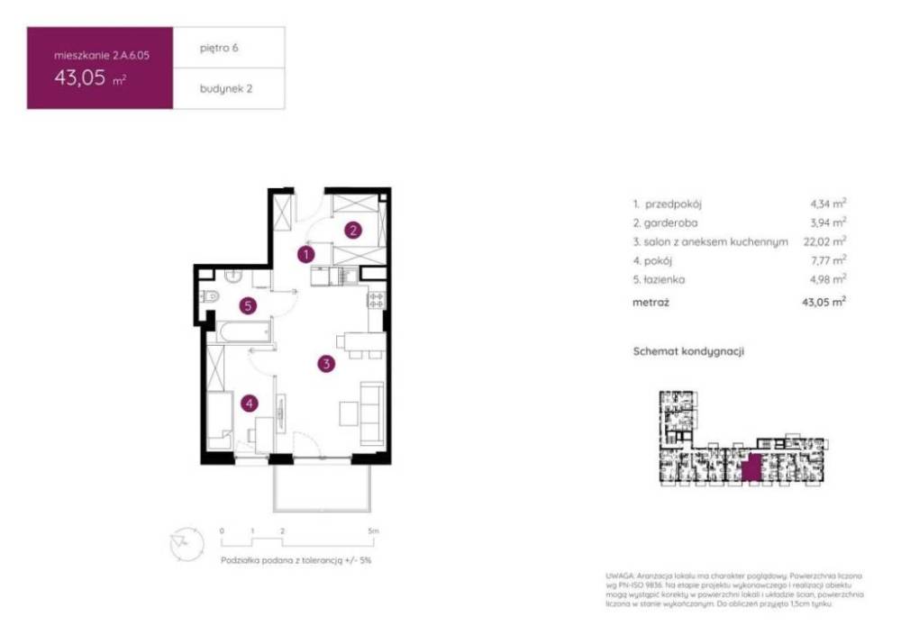
Powierzchnia43.05
Pokoje2
Piętro6
Materiałdowlona
Rok budowy2025
Nr oferty13-44322
Data2026-02-11
Licencja zawodowa4145
AgentTomczyk Marek
Emailm.tomczyk.nieruchomosci@gmail.com
Licencja agenta4145
Innemeble

Opis

2-pokojowe nowoczesne mieszkanie z dużym balkonami - 6. piętro -  Ursus, Posag 7 Panien
Cena: 701 715 zł
Bezpośrednio od dewelopera
Na sprzedaż komfortowe, 2-pokojowe mieszkanie o powierzchni 43,05 m, położone na 6 piętrze nowoczesnego budynku z windą, przy Posagu 7 Panien na warszawskim Ursusie.
Przemyślany układ pomieszczeń zapewnia wygodę zarówno rodzinie, jak i parze czy singlowi poszukującemu przestrzeni do życia i pracy w jednym miejscu.
Rozkład pomieszczeń:
Salon z aneksem kuchennym - 22,02 m
Przedpokój - 4,34 m
Pokój - 7,77 m 
Garderoba - 3,94 m 
Łazienka - 4,98 m 
O inwestycji
Nowoczesne, starannie zaprojektowane osiedle mieszkaniowe powstające w dynamicznie rozwijającej się dzielnicy Ursus w Warszawie. Projekt stanie się częścią nowej, atrakcyjnej przestrzeni do życia, którą coraz więcej osób wybiera jako miejsce do budowania przyszłości swojej i swoich bliskich.
W ofercie znajduje się 406 mieszkań o zróżnicowanych metrażach
od 26 do 60 m. To kompaktowe, funkcjonalnie zaprojektowane lokale: kawalerki oraz mieszkania 2-, 3- i 4pokojowe, idealne zarówno dla singli, par, rodzin, jak i inwestorów.
Dodatkowe informacje
Osiedle tworzą cztery budynki o wysokości 6 i 8 pięter, harmonijnie wpisujące się w otoczenie.
W odległości ok. 5 minut jazdy samochodem przebiegają trasy S8 i S2, które jako zachodnia obwodnica Warszawy umożliwiają szybkie i wygodne poruszanie się po mieście i poza nim.
W pobliżu znajdują się przystanki autobusowe Posag 7 Panien, obsługiwane przez linie 716, 177 i 207.
Do budowanej stacji metra M2 Karolin (ul. Połczyńska / Sochaczewska) można dojechać autobusem w około 6 minut. Otwarcie stacji planowane jest na 2026 rok.
W zasięgu około 15 minut spaceru znajdują się aż trzy stacje kolejowe: Warszawa Ursus Północny, Warszawa Ursus oraz Warszawa Gołąbki
skąd dojazd do Śródmieścia zajmuje kolejne 15 minut.
Zaledwie 1,5 km dzieli inwestycję od największego centrum handlowego i outletowego w okolicy
Factory Ursus.
W odległości 300 metrów znajduje się popularny wśród mieszkańców EKOpark, idealny na rodzinny wypoczynek i rekreację.
W promieniu 200-300 metrów działają dwie siłownie i kluby fitness, co docenią osoby prowadzące aktywny tryb życia.
Około 10 minut spacerem zajmuje dojście do Parku Hassów.
Dlaczego warto?
Atrakcyjna lokalizacja, świetna komunikacja, dostęp do zieleni i bogata infrastruktura usługowa sprawiają, że inwestycja odpowiada na potrzeby współczesnych klientów
zarówno tych poszukujących mieszkania dla siebie, jak i osób planujących zakup w celach inwestycyjnych.
Posiadamy również inne lokale w tej inwestycji.
Zadzwoń i umów się na prezentację!
Zamieszkaj nowocześnie, wysoko i wygodnie - z własnym tarasem, antresolą iświetnym dojazdem do centrum! 
Kontakt:
Marek 509 165 458
Więcej ofert na stronach: kobrynski.pl, www.grewal.com.pl 


Mapa

Poleć ofertę znajomemu!

Twoje imię i nazwisko:
Twój adres e-mail:
Adres e-mail znajomego:
Treść:
  • Oferta
    Oferta
  • Oferta
    Oferta
  • Oferta
    Oferta
  • Oferta
    Oferta
  • Oferta
    Oferta
  • Oferta
    Oferta
    
  
  


Nieruchomości Waldemar Kobryński
(zobacz oferty biura)
(zobacz pracowników biura)
ul.Broniewskiego 28
01-771 Warszawa
Pokaż dane kontaktowe