Kursy walut(PLN)    4.75 4.76 5.41 4.38
Znajdź na mapie
Typ Cena od Powierzchnia od
do do
Oferta nr 13-44328
Rodzaj obiektuMieszkania
Kategoriamieszkanie
Typsprzedaż
Regionmazowieckie
MiejscowośćWarszawa
DzielnicaWawer
UlicaPoprawna
WalutaPLN
Cena1 498 815 PLN
Cena za m2 15 530 PLN
Powierzchnia96.51
Pokoje4
Materiałdowlona
Rok budowy2025
Nr oferty13-44328
Data2026-02-10
Licencja zawodowa4145
AgentTomczyk Marek
Emailm.tomczyk.nieruchomosci@gmail.com
Licencja agenta4145
Innemeble

Opis

Dwu poziomowe, 4-pokojowe nowoczesne mieszkanie z ogrodem i 2 miejscami postojowymi - Wawer, ul. , Poprawna
,
Cena: 1 498 815 zł
Powierzchnia mieszkania 96,51 ,m
Powierzchnia terenu 124,66 ,m
Bezpośrednio od dewelopera
Na sprzedaż komfortowe, ,dwu poziomowe, ,4-pokojowe mieszkanie o powierzchni 96,51 m, na Wawrze przy ul. Poprawnej .
Przemyślany układ pomieszczeń zapewnia wygodę zarówno rodzinie, jak i parze czy singlowi poszukującemu przestrzeni do życia i pracy w jednym miejscu.
Rozkład pomieszczeń:
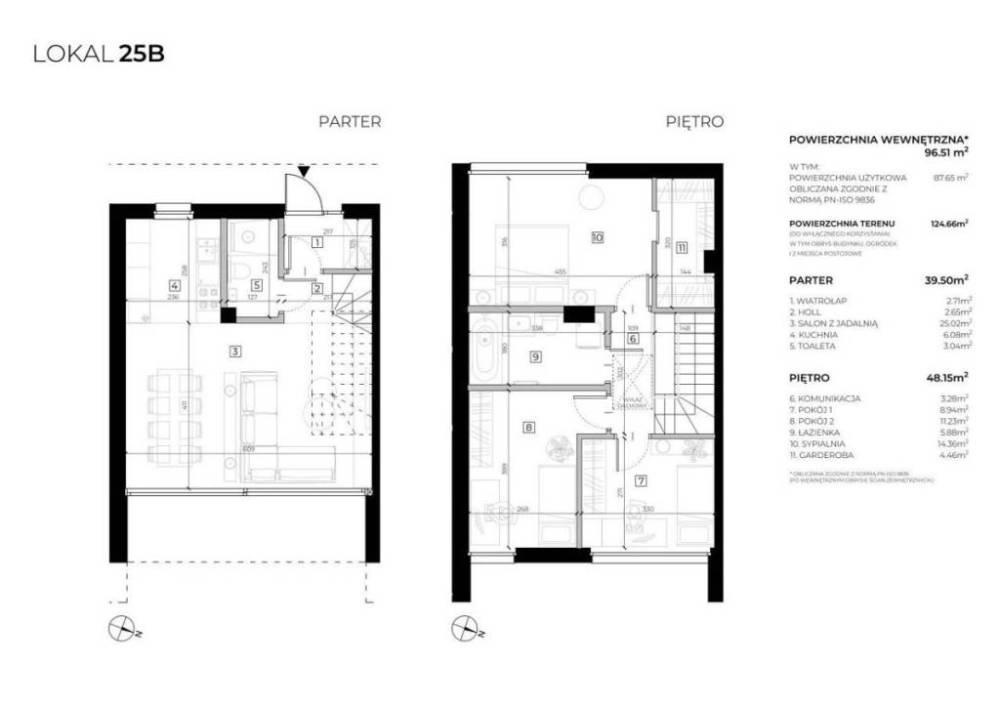
Parter ,- 39,50 m
Wiatrołap , - 2,71 m
Holl , - 2,65 m
Salon z jadalnią , - 25,02 m
Kuchnia , - 6,08 m
Toaleta , - 3,04 m
Piętro ,- 48,15 m
Komunikacja , - 3,28 m
Pokój 1 , - 8,94 m
Pokój 2 , - 11,23 m
Łazienka , - 5,88 m
Sypialnia , - 14,36 m
Garderoba , - 4,46 m
O inwestycji ,
Wysokie i jasne wnętrza podkreślają komfort życia
2,85 m wysokości na parterze oraz 2,65 m na piętrze.Każdy dom wyposażono w gniazdko do ładowania pojazdów elektrycznych, a dla większej wygody przewidziano możliwość wykonania zadaszenia na samochód.Dodatkowo istnieje opcja montażu klimatyzacji oraz paneli fotowoltaicznych, co pozwala dostosować dom do indywidualnych potrzeb i zwiększyć jego energooszczędność.
Dodatkowe informacje ,
Do wyboru przygotowano pięć zróżnicowanych typów metraży, z których każdy posiada własny ogródek
idealne rozwiązanie dla osób poszukujących domu z prywatną przestrzenią w Warszawie.Duże przeszklenia oraz przestronne tarasy nadają wnętrzom lekkości i wakacyjnego charakteru.Cała inwestycja łączy w sobie nowoczesną architekturę z funkcjonalnymi rozwiązaniami, tworząc przestrzeń wygodną do życia na co dzień.
Posiadamy również inne lokale w tej inwestycji.
Zadzwoń i umów się na prezentację!
Zamieszkaj nowocześnie, wysoko i wygodnie - z własnym tarasem, antresolą iświetnym dojazdem do centrum! ,
Kontakt:
Marek 509 165 458
Więcej ofert na stronach: kobrynski.pl, www.grewal.com.pl ,


Mapa

Poleć ofertę znajomemu!

Twoje imię i nazwisko:
Twój adres e-mail:
Adres e-mail znajomego:
Treść:
  • Oferta
    Oferta
  • Oferta
    Oferta
  • Oferta
    Oferta
  • Oferta
    Oferta
  • Oferta
    Oferta
  • Oferta
    Oferta
    
  
  


Nieruchomości Waldemar Kobryński
(zobacz oferty biura)
(zobacz pracowników biura)
ul.Broniewskiego 28
01-771 Warszawa
Pokaż dane kontaktowe