Kursy walut(PLN)    4.75 4.76 5.41 4.38
Znajdź na mapie
Typ Cena od Powierzchnia od
do do
Oferta nr 13-44190
Rodzaj obiektuDomy
Kategoriabliźniak
Typsprzedaż
Regionmazowieckie
MiejscowośćFalenty
UlicaFalenty
WalutaPLN
Cena933 636 PLN
Pow.działki(m2)82
Cena za m2 8 662 PLN
Powierzchnia107.78
Pokoje4
Materiałdowlona
Rok budowy2023
Nr oferty13-44190
Data2026-02-08
Licencja zawodowa4145
AgentTomczyk Marek
Emailm.tomczyk.nieruchomosci@gmail.com
Licencja agenta4145
Innemeble

Opis

Nowy dom 107,78 m, 4 pokoje + ogród 82,30 m - Falenty 933 636zł
Bezpośrednio od dewelopera.
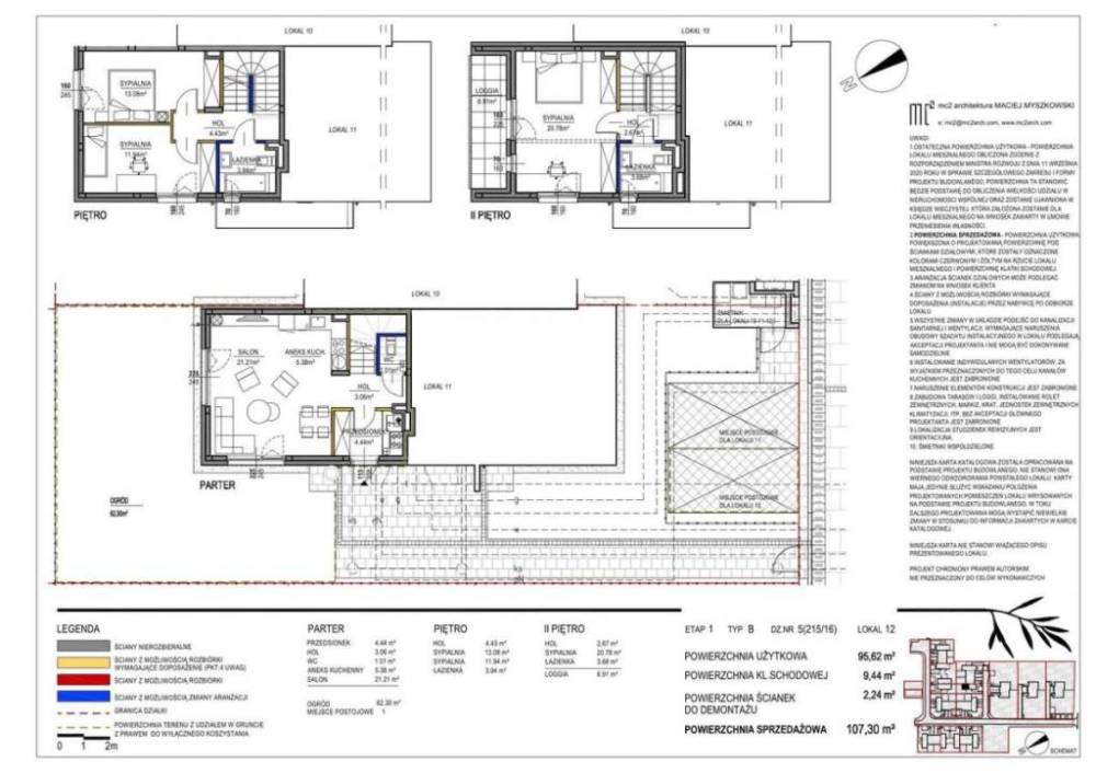
Na sprzedaż nowoczesny, 2-piętrowy dom w zabudowie bliźniaczej o powierzchni ,107,78 ,m z prywatnym ogrodem o powierzchni ,82,30 ,m, zlokalizowany w prestiżowej, zielonej inwestycji w Falentach - tuż pod Warszawą. Inwestycja oferuje połączenie komfortowego życia z ekologicznymi rozwiązaniami i spokojnym otoczeniem natury.
Szczegóły nieruchomości:
- Powierzchnia domu: ,107,78 ,m
- Liczba pokoi: 4
- Kondygnacje: parter + 2 piętra
- Cena: ,933 636zł
- Stan: deweloperski
- Prywatny ogród: ,82,30 ,m
- 1 miejsce postojowe w cenie
Funkcjonalny rozkład:
Parter:
- Przestronny salon z aneksem kuchennym i wyjściem do ogrodu
- WC
- Wiatrołap
Piętro:
- 2 komfortowe sypialnie
- Łazienka
- Hol
2 Piętro:
- Sypialnia
- Łazienka
- Hol
- Loggia
Nowoczesna i ekologiczna inwestycja -EKO standard życia:
W inwestycji powstaje 66 energooszczędnych mini domów,które mimo ekonomicznych metraży - kryją w sobie nowoczesne przyjazne środowisku rozwiązania:
- Rekuperacja w każdym domu
- System odprowadzania wód opadowych i roztopowych z każdej działki
-Przygotowanie do samodzielnego montażu instalacji fotowoltaicznej
W ramach I etapu powstanie 42 domów o metrażach od 75,75 do 139,76 m. Każdy z nich posiada własny ogród - idealny do relaksu i rekreacji.
Zielona przestrzeń do życia -Eko Pasaż i tereny rekreacyjne:
Przez całe osiedle przebiegać będzie zielony Eko Pasaż z nieregularną roślinnością, ławkami i elementami placu zabaw-idealne miejsce na spacery i odpoczynek na świeżym powietrzu.
Pasaż prowadzi do przestronnego terenu rekreacyjnego nad rzeką Raszynką - z boiskami, placami zabaw i strefą wypoczynku.
Lokalizacja - Falenty:
- Blisko Alei Krakowskiej - szybki dojazd do Warszawy i CH Janki
- Spokojna, zielona okolica
- Nowoczesny kompleks szkolno-przedszkolny w Ładach - w pobliżu
- Rezerwaty i tereny zielone: Stawy Raszyńskie, Lasy Sękocińskie,Ogród Botaniczny PAN
Zadzwoń i umów się na prezentację!
Zamieszkaj w energooszczędnym domu z ogrodem pod Warszawą -stwórz swoją zieloną oazę w Falentach!
Kontakt:
Marek 509 165 458
Więcej ofert na stronach: kobrynski.pl, www.grewal.com.pl


Mapa

Poleć ofertę znajomemu!

Twoje imię i nazwisko:
Twój adres e-mail:
Adres e-mail znajomego:
Treść:
  • Oferta
    Oferta
  • Oferta
    Oferta
  • Oferta
    Oferta
  • Oferta
    Oferta
  • Oferta
    Oferta
    
  
  


Nieruchomości Waldemar Kobryński
(zobacz oferty biura)
(zobacz pracowników biura)
ul.Broniewskiego 28
01-771 Warszawa
Pokaż dane kontaktowe