Kursy walut(PLN)    4.75 4.76 5.41 4.38
Znajdź na mapie
Typ Cena od Powierzchnia od
do do
Oferta nr 732-13156
Rodzaj obiektuDomy
Kategoriawolno stojący
Typsprzedaż
Regiondolnośląskie
MiejscowośćJelenia Góra
WalutaPLN
Cena750 000 PLN
Pow.działki(m2)992
Cena za m2 3 112 PLN
Powierzchnia241
Pokoje6
Materiałceramika
Nr oferty732-13156
Data2025-10-10
Licencja zawodowa6692
AgentChojnacki Adam
Telefon514209936
Emailadam.dom@op.pl
Licencja agenta6692
Innesiła,woda,gaz,prąd,kanalizacja

Opis

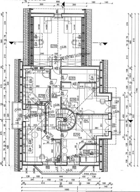
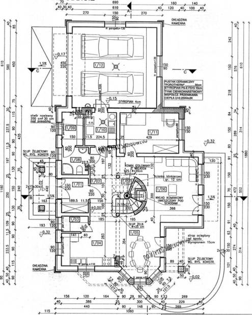
Do sprzedania atrakcyjna nieruchomość dom wolnostojący w stanie surowym zamkniętym o powierzchni 241 m2 położony na kameralnym osiedlu w pobliżu Jeleniej Góry - Mysłakowice , .
Budynek piętrowy częściowo podpiwniczony budowany w technologii tradycyjnej : ściany cegła porotherm max , powierzchnia podług to 290 m2, poszycie dachu dachówka ceramiczna .Jest zamontowany kominek firmy Jotul, komin wolnostojący firmy Schiedel, 14 okien dachowych Velux powlekanych PCV , trzy świetliki. Pozostałe okna i drzwi tarasowe firmy Drutex.
Główne drzwi do budynku to drzwi producenta Euronord, antywłamaniowe, stalowe i z kompozytu poliestrowo-szklanego w domu podwójny garaż z kanałem najazdowym jest wzmocniony chudziak z prętami zbrojeniowymi posadzka przygotowana na podnośnik do auta i mały dzwig tzw suwak.
Projekt Dom w szarotkach .
Media : woda, kanalizacja i prąd podłączone do budynku , zamontowany system alarmowy . Przyłącze gazu jest przy granicy działki .
Dom położony na działce o powierzchni 992 m2 . Na terenie są posadzone krzewy i drzewa owocowe .
Budynek jednorodzinny składa się trzech kondygnacji ( parter , piętro i poddasze użytkowe ) został tak zbudowany, by można było go łatwo zaadaptować , na 4 mieszkania, lub na mieszkanie i pokoje do agroturystyki, apartamenty .
Cena 750 000 zł.
Zapraszam na prezentacje : Adam Chojnacki Nieruchomości Gold House , tel. 514 209 936 .


Poleć ofertę znajomemu!

Twoje imię i nazwisko:
Twój adres e-mail:
Adres e-mail znajomego:
Treść:
  • Oferta
    Oferta
  • Oferta
    Oferta
  • Oferta
    Oferta
  • Oferta
    Oferta
  • Oferta
    Oferta
  • Oferta
    Oferta
  • Oferta
    Oferta
  • Oferta
    Oferta
  • Oferta
    Oferta
  • Oferta
    Oferta
  • Oferta
    Oferta
  • Oferta
    Oferta
  • Oferta
    Oferta
  • Oferta
    Oferta
  • Oferta
    Oferta
  • Oferta
    Oferta
    
  
  


Nieruchomości GOLD HOUSE
(zobacz oferty biura)
(zobacz pracowników biura)
ul. M. Konipnickiej 1
58-500 Jelenia Góra
Pokaż dane kontaktowe