Kursy walut(PLN)    4.75 4.76 5.41 4.38
Znajdź na mapie
Typ Cena od Powierzchnia od
do do
Oferta nr 92-495250874007
Rodzaj obiektuDomy
Kategoriabliźniak
Typsprzedaż
Regiondolnośląskie
MiejscowośćOborniki Śląskie
UlicaWarneńczyka, ostatni dostępny lokal, 45m od lasu
WalutaPLN
Cena949 000 PLN
Pow.działki(m2)455
Cena za m2 6 072 PLN
Powierzchnia156.28
Front(m)14
Pokoje5
Materiałceramika
Rok budowy2025
Nr oferty92-495250874007
Data2026-04-13
Licencja zawodowa21088
AgentKościńska Anna
Telefon519-186-407
Emailanna@novena.pl
Licencja agenta21088
Innesiła,woda,gaz,prąd,kanalizacja

Opis

:KONTAKT: Anna Kościńska, tel. 519 186 407
od poniedziałku do piątku w godzinach od 10.00 do 18.00
Lokal mieszkalny w stanie deweloperskim o powierzchni użytkowej 134 m2 (+ garaż w bryle budynku 22,29 m2), położony na działce 896 m2 (do lokalu przynależy 455 m2) w Obornikach Śląskich przy ul. Warneńczyka.
14 km od północnej granicy Wrocławia.
1,2 km do stacji kolejowej, 11 km od wjazdu na S5.
Inwestycja składa się z 4 domów dwulokalowych (8 lokali), na sporych działkach od 430 m2 do 455 m2 do każdego mieszkania.
Budynki są sprzedawane w stanie deweloperskim, po wszystkich odbiorach, z pozwoleniem na użytkowanie.
Zapraszamy na stronę inwestycji: bc-invest.pl
Nieruchomość wyłącznie w naszym biurze.
0% PROWIZJI OD KUPUJĄCEGO.
Podana cena jest ceną brutto - kupujący nie płaci 2% PCC.
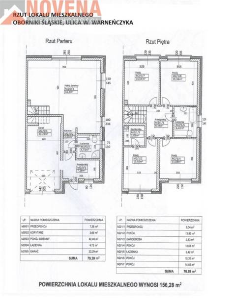
PARTER - 79,39 m2 (wysokość pomieszczeń 2,80 m):
- pięknie doświetlony salon z aneksem kuchennym (łącznie ok. 42,40 m2) z wyjściem na ogród od strony południowej i południowo zachodniej,
- łazienka ok. 4,72 m2,
- przedpokój ok. 7,28 m2,
- korytarz ok. 2,69 m2,
- garaż ok. 22,29 m2.
PIĘTRO - 76, 89 m2 (brak skosów - wysokość pomieszczeń 2,75 m):
- cztery sypialnie (ok.15,36 m2, ok. 14,54 m2, ok. 13,92 m2 + prywatna garderoba 3,63 m2 oraz 13,68 m2)
- łazienka ok. 6,42 m2,
- przedpokój ok. 9,34 m2.
STRYCH: wysokie, przestronne pomieszczenie - istnieje możliwość zrobienia dodatkowego pokoju wg. własnej aranżacji.
Domy budowane z pustaków ceramicznych, ocieplone z elewacją. Dach kryty dachówką ceramiczną, wykonano podbitkę i orynnowanie.
Podwójna ściana między lokalami.
Okna PCV trzyszybowe z roletami zewnętrznymi sterowanymi elektrycznie, brama garażowa z napędem.
Ogrzewanie podłogowe na całej powierzchni lokalu  (łącznie z garażem) poprzez piec gazowy dwu-funkcyjny.
Dodatkowo wykonano instalację pod montaż pompy ciepła oraz instalację kominkową.
Posesja ogrodzona, wykonano podjazd z kostki brukowej.
MEDIA: prąd, woda, kanalizacja, gaz. 
Domy położone w bocznej uliczce, w sąsiedztwie nowe domy jednorodzinne - las w odległości ok. 45 m.
W miejscowości pełna infrastruktura: ośrodki szkolne, dyskonty spożywcze, sklepy wielobranżowe, restauracje, Urząd Miejski, ośrodki zdrowia i sportu.
Zapraszam do zapoznania się z nieruchomością.
::KONTAKT: Anna Kościńska
tel. 519 186 407
Prezentujemy tylko sprawdzone oferty.
Bezpłatnie pomagamy w udzieleniu kredytu na zakup nieruchomości.
Naszym Klientom oferujemy również pomoc prawną.
Powyższa oferta ma charakter informacyjny i nie stanowi oferty handlowej w rozumieniu art.66 1 Kodeksu Cywilnego.
Opis oferty sporządzany jest na podstawie oględzin nieruchomości oraz informacji uzyskanych od właściciela i może podlegać aktualizacji.


Mapa

Poleć ofertę znajomemu!

Twoje imię i nazwisko:
Twój adres e-mail:
Adres e-mail znajomego:
Treść:
  • Oferta
    Oferta
  • Oferta
    Oferta
  • Oferta
    Oferta
  • Oferta
    Oferta
  • Oferta
    Oferta
  • Oferta
    Oferta
  • Oferta
    Oferta
  • Oferta
    Oferta
  • Oferta
    Oferta
  • Oferta
    Oferta
  • Oferta
    Oferta
  • Oferta
    Oferta
  • Oferta
    Oferta
  • Oferta
    Oferta
  • Oferta
    Oferta
  • Oferta
    Oferta
  • Oferta
    Oferta
  • Oferta
    Oferta
  • Oferta
    Oferta
    
  
  


Novena s.c. Dawid Cygański, Małgorzata Uliasz
(zobacz oferty biura)
(zobacz pracowników biura)
ul. Inowrocławska 21/1
53-643 Wrocław
Pokaż dane kontaktowe