Kursy walut(PLN)    4.75 4.76 5.41 4.38
Znajdź na mapie
Typ Cena od Powierzchnia od
do do
Oferta nr 92-495250874183
Rodzaj obiektuDomy
Kategoriawolno stojący
Typsprzedaż
Regiondolnośląskie
MiejscowośćPoniatowice
DzielnicaPoniatowice
UlicaDom wolnostojący, ok. 30 min od Wrocławia.
WalutaPLN
Cena895 000 PLN
Pow.działki(m2)800
Cena za m2 6 885 PLN
Powierzchnia130
Pokoje4
Materiałceramika
Rok budowy2024
Nr oferty92-495250874183
Data2026-03-26
Licencja zawodowa21088
AgentUliasz Małgorzata
Telefon519 186 410
Emailmalgorzata.u@novena.pl
Licencja agenta21088
Innesiła,woda,prąd,meble

Opis

KONTAKT : Małgorzata Uliasz 519 186 410.
Od poniedziałku do piątku w godz. 10.00 do 18.00.
Prowizja 0% od Kupującego.  OFERTA NA WYŁĄCZNOŚĆ . Wynagrodzenie Pośrednika pokrywa Sprzedający.
Miejscowość: Poniatowice, ok. 9 km od Oleśnicy. Do Wrocławia ok. 20 minut trasą S8, blisko zjazd z S8.
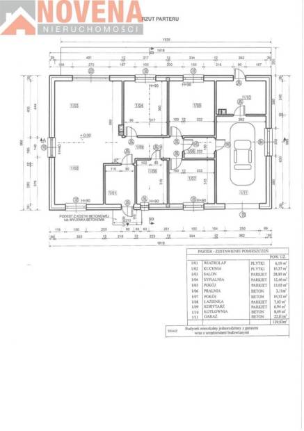
Dom wolnostojący położony na działce o powierzchni 803  m2.
Powierzchnia domu całkowita ok. 130 m2.
Na parterze znajduje się:
- wiatrołap,
- salon z jadalnią oraz kuchnią,
- 3 sypialnie,
- łazienka z wanną oraz kabiną prysznicową, 
- pomieszczenie gospodarcze,
- garaż,
-pralnia z kotłownią.
Duże poddasze nieużytkowe w możliwością zmiany sposobu użytkowania na mieszkalne. 
Na podłogach kafle lub panele w zależności od pomieszczenia.
Okna PCV pięciokomorowe z roletami zewnętrznymi. 
Nieruchomości została oddana do użytku w 2024 roku. Przez dwa lata była sukcesywnie zagospodarowywana i wykańczana. Obecnie pozostało już tylko kilka rzeczy do zrobienia ( np. położenie kafli w garażu, listwy przypodłogowe).
Ogrzewanie pompą ciepła, dodatkowo kominek w salonie. Zamontowany zmiękczacz wody.
Media: woda, prąd, przydomowa oczyszczalnia ścieków.
Duży, zagospodarowany w większości ogród.
Spokojna okolica, wokół zabudowa jednorodzinna. Dużo terenów zielonych.
W miejscowości: szkoła, przedszkole, ośrodek zdrowia, DINO, kilka osiedlowych sklepów. Blisko stacja benzynowa.
OFERTA GODNA UWAGI!
Razem z Właścicielami nieruchomości, które mamy w swojej ofercie,zwracamy się z uprzejmą prośbą o uszanowanie prywatności i nieprzyjeżdżanie na miejsce bez zapowiedzi i opiekuna z naszego biura.
Zazwyczaj nie podajemy do publicznej wiadomości dokładnej lokalizacji oferty ( na prośbę Sprzedającego lub z związku z ustawą o ochronie danych osobowych, a czasem ze względów bezpieczeństwa).
Pomagamy w udzieleniu kredytu na zakup nieruchomości.
Naszym Klientom oferujemy również pomoc prawną.
Powyższa oferta ma charakter informacyjny i niestanowi oferty handlowej w rozumieniu art.66 1 Kodeksu Cywilnego. 


Poleć ofertę znajomemu!

Twoje imię i nazwisko:
Twój adres e-mail:
Adres e-mail znajomego:
Treść:
  • Oferta
    Oferta
  • Oferta
    Oferta
  • Oferta
    Oferta
  • Oferta
    Oferta
  • Oferta
    Oferta
  • Oferta
    Oferta
  • Oferta
    Oferta
  • Oferta
    Oferta
  • Oferta
    Oferta
  • Oferta
    Oferta
  • Oferta
    Oferta
  • Oferta
    Oferta
  • Oferta
    Oferta
  • Oferta
    Oferta
  • Oferta
    Oferta
  • Oferta
    Oferta
  • Oferta
    Oferta
    
  
  


Novena s.c. Dawid Cygański, Małgorzata Uliasz
(zobacz oferty biura)
(zobacz pracowników biura)
ul. Inowrocławska 21/1
53-643 Wrocław
Pokaż dane kontaktowe