Kursy walut(PLN)    4.75 4.76 5.41 4.38
Znajdź na mapie
Typ Cena od Powierzchnia od
do do
Oferta nr 13-44339
Rodzaj obiektuDomy
Kategoriaszeregowiec
Typsprzedaż
Regionmazowieckie
MiejscowośćWarszawa
DzielnicaWilanów
UlicaPrymasa Augusta Hlonda
WalutaPLN
Cena4 400 000 PLN
Pow.działki(m2)531
Cena za m2 23 374 PLN
Powierzchnia188.24
Pokoje5
Materiałdowlona
Rok budowy2026
Nr oferty13-44339
Data2026-02-20
Licencja zawodowa4145
AgentTomczyk Marek
Emailm.tomczyk.nieruchomosci@gmail.com
Licencja agenta4145
Innemeble

Opis

Dwu poziomowe, 5-pokojowe nowoczesne mieszkanie z ogrodem i garażem - Wilanów, ul. , Prymasa Augusta Hlonda ,
,
Cena: 4 400 000 zł
Powierzchnia mieszkania , 188,24 , ,m
Powierzchnia terenu 531,66 ,m
,
Bezpośrednio od dewelopera
Na sprzedaż komfortowe, ,dwu poziomowe, 5-pokojowe mieszkanie o powierzchni 188,24 m, z garażem, na Wilanowei przy ul. Prymasa Augusta Hlonda.
Przemyślany układ pomieszczeń zapewnia wygodę zarówno rodzinie, jak i parze czy singlowi poszukującemu przestrzeni do życia i pracy w jednym miejscu.
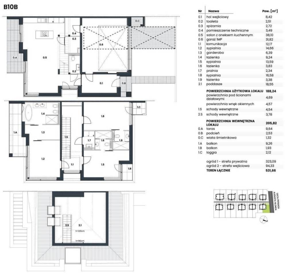
Rozkład pomieszczeń:
Parter , ,
hol wejściowy , ,- 8,42 m
toaleta , ,- 2,51 m
spiżarnia - ,2,72 m
pomieszczenie techniczne , ,- 3,49 m
salon z aneksem kuchennym , ,- 38,10 m
taras , ,- 9,64m
podcień , ,- 2,53 m
wiata śmietnikowa , ,- 1,32 m
garaż , ,- 31,82 m
Piętro ,
komunikacja , - 12,17 m
sypialnia , ,- 14,66 m
garderoba , ,- 6,39 m
łazienka ,- 9,24 m
sypialnia ,- 13,59 m
łazienka , ,- 3,83 m
pralnia ,- 2,34 m
sypialnia ,- 16,58 m
łazienka ,- 3,38 m
Poddasze ,- 18,55 m
ogród 1 - strefa prywatna ,- 323,09 m
ogród 2 - strefa wejściowa ,- 94,33 m
O inwestycji ,
Zamknięte, luksusowe osiedle położone jest w prestiżowej i dynamicznie rozwijającej się części Wilanowa, w bezpośrednim sąsiedztwie bogatej infrastruktury Królewskiej Dzielnicy. W ofercie znajdują się przestronne, nowoczesne rezydencje o powierzchniach od około 250 do 360 m, usytuowane na działkach o wielkości od 550 do 1200 m.
Projekt wyróżnia się modernistyczną architekturą, elegancką kolorystyką utrzymaną w odcieniach bieli, szarości i jasnego beżu oraz wykończeniem z naturalnego kamienia. Duże przeszklenia nadają budynkom lekkości i zapewniają doskonałe doświetlenie wnętrz, tworząc poczucie przestrzeni i otwartości. Każdą rezydencję otacza prywatny ogród, stanowiący idealne miejsce do relaksu i spędzania czasu na świeżym powietrzu.
Reprezentacyjna aleja główna zapewni wygodny dojazd do poszczególnych domów. Szeroka, elegancka i starannie zaprojektowana, z piękną zielenią, stanie się centralną osią całej inwestycji.
Teren osiedla będzie ogrodzony, strzeżony i całkowicie zamknięty. Przy wjeździe powstanie portiernia z kontrolą dostępu, a całość uzupełnią alejki spacerowe, starannie zaplanowana zieleń oraz elementy małej architektury. Monitoring i systemy bezpieczeństwa zapewnią mieszkańcom pełen komfort, prywatność i spokój.
Posiadamy również inne lokale w tej inwestycji.
Zadzwoń i umów się na prezentację!
Zamieszkaj nowocześnie, wysoko i wygodnie - z własnym tarasem, antresolą iświetnym dojazdem do centrum! ,
Kontakt:
Marek 509 165 458
Więcej ofert na stronach: kobrynski.pl, www.grewal.com.pl ,


Mapa

Poleć ofertę znajomemu!

Twoje imię i nazwisko:
Twój adres e-mail:
Adres e-mail znajomego:
Treść:
  • Oferta
    Oferta
  • Oferta
    Oferta
  • Oferta
    Oferta
  • Oferta
    Oferta
  • Oferta
    Oferta
  • Oferta
    Oferta
    
  
  


Nieruchomości Waldemar Kobryński
(zobacz oferty biura)
(zobacz pracowników biura)
ul.Broniewskiego 28
01-771 Warszawa
Pokaż dane kontaktowe