Kursy walut(PLN)    4.75 4.76 5.41 4.38
Znajdź na mapie
Typ Cena od Powierzchnia od
do do
Oferta nr 13-44351
Rodzaj obiektuDomy
Kategoriabliźniak
Typsprzedaż
Regionmazowieckie
MiejscowośćWarszawa
DzielnicaWilanów
UlicaZdrowa
WalutaPLN
Cena2 668 698 PLN
Pow.działki(m2)115
Cena za m2 24 164 PLN
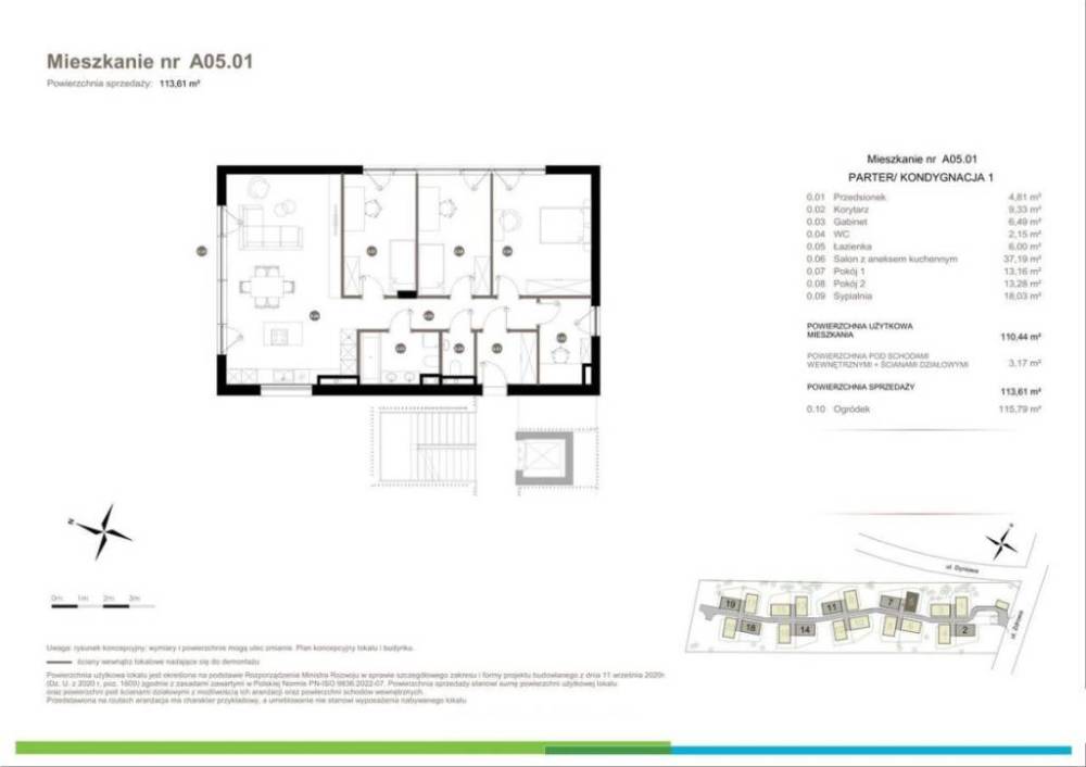
Powierzchnia110.44
Pokoje4
Materiałdowlona
Rok budowy2026
Nr oferty13-44351
Data2026-02-20
Licencja zawodowa4145
AgentTomczyk Marek
Emailm.tomczyk.nieruchomosci@gmail.com
Licencja agenta4145
Innemeble

Opis

4-pokojowe nowoczesne mieszkanie z ogrodem - Wilanów, ul. , Zdrowa ,
Cena: 2 668 698 zł
Powierzchnia mieszkania , 110,44 , ,m
,
Bezpośrednio od dewelopera
Na sprzedaż komfortowe, 4-pokojowe mieszkanie o powierzchni 110,44 m, na Wilanowie przy ul. Zdrowej.
Przemyślany układ pomieszczeń zapewnia wygodę zarówno rodzinie, jak i parze czy singlowi poszukującemu przestrzeni do życia i pracy w jednym miejscu.
Rozkład pomieszczeń:
Przedsionek , ,- 4,81 m
Korytarz , ,- 9,33 m
Gabinet , ,- 4,49 m
WC , ,- 2,15 m
Łazienka , ,- 6,00 m
Salon z aneksem kuchennym , ,- 37,19 m
Pokój 1 - 13,16 m
Pokój 2 , ,- 13,28 m
Sypialnia , ,- 18,03 m , ,
Ogród , ,- 115,79 m
O inwestycji ,
Inwestycja obejmuje 28 jednorodzinnych budynków dwulokalowych, co daje łącznie 56 komfortowych lokali mieszkalnych. Cały ruch samochodowy został zaplanowany pod zadaszonym przejazdem, dzięki czemu teren osiedla pozostanie przestrzenią wyłącznie dla pieszych i rowerzystów
bezpieczną, cichą i wolną od spalin.
Ponad 73% powierzchni inwestycji stanowić będą starannie zaprojektowane tereny zielone, które stworzą przyjazne, naturalne otoczenie sprzyjające wypoczynkowi. Niska, kameralna zabudowa oraz duże odległości pomiędzy budynkami zapewnią mieszkańcom poczucie prywatności i komfortu. ,
Dodatkowe informacje ,
Przemyślany układ domów gwarantuje maksymalną intymność i wygodę. Nowoczesna architektura w połączeniu z niską zabudową nadaje osiedlu prestiżowy charakter. Otaczająca zieleń skutecznie izoluje od miejskiego zgiełku, tworząc idealne warunki do relaksu.
Dzięki przeniesieniu ruchu kołowego pod zadaszony przejazd, przestrzeń osiedla pozostaje w pełni przyjazna mieszkańcom
bez hałasu, bez spalin, z bezpiecznymi alejkami dla pieszych i rowerzystów.
Posiadamy również inne lokale w tej inwestycji.
Zadzwoń i umów się na prezentację!
Zamieszkaj nowocześnie, wysoko i wygodnie - z własnym tarasem, antresolą iświetnym dojazdem do centrum! ,
Kontakt:
Marek 509 165 458
Więcej ofert na stronach: kobrynski.pl, www.grewal.com.pl ,


Mapa

Poleć ofertę znajomemu!

Twoje imię i nazwisko:
Twój adres e-mail:
Adres e-mail znajomego:
Treść:
  • Oferta
    Oferta
  • Oferta
    Oferta
  • Oferta
    Oferta
  • Oferta
    Oferta
  • Oferta
    Oferta
  • Oferta
    Oferta
  • Oferta
    Oferta
  • Oferta
    Oferta
  • Oferta
    Oferta
    
  
  


Nieruchomości Waldemar Kobryński
(zobacz oferty biura)
(zobacz pracowników biura)
ul.Broniewskiego 28
01-771 Warszawa
Pokaż dane kontaktowe