Kursy walut(PLN)    4.75 4.76 5.41 4.38
Znajdź na mapie
Typ Cena od Powierzchnia od
do do
Oferta nr 301-15271WYŁĄCZNOŚĆ
Rodzaj obiektuDomy
Kategoriabliźniak
Typsprzedaż
Regionlubuskie
MiejscowośćZielona Góra
WalutaPLN
Cena635 000 PLN
Pow.działki(m2)403
Cena za m2 6 656 PLN
Powierzchnia95.4
Pokoje4
Materiałdowlona
Rok budowy2025
Nr oferty301-15271
Data2026-01-22
Licencja zawodowa1717
AgentKrawczyk Hanna
Telefon+48501778706
Emailhania.krawczyk@apartament.net.pl
Licencja agenta1717
Innewoda,gaz,prąd

Opis

Rezerwacja ! 
Już gotowy dom w inwestycji Czeremchowa - Płoty 
- odbiór kluczy jeszcze w tym roku
- w cenie zagospodarowanie terenu, ogrodzenie działki, ścieżki i dwa miejsca postojowe 
- bezpośrednio od sprawdzonego dewelopera, bez PCC i prowizji. Wszystkie szczegóły pod numerem 501 778 706 - zapraszamy do kontaktu!
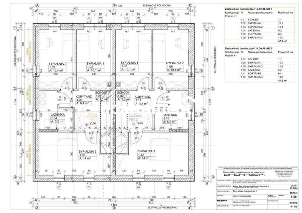
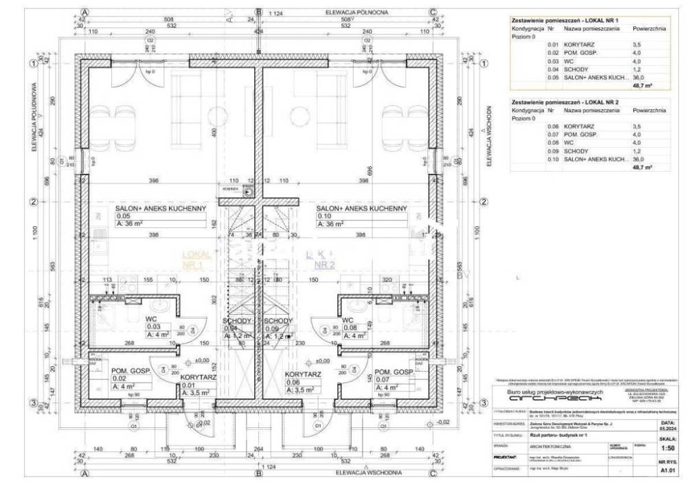
Metraż domu to 95,4 m, obejmujący:
- Parter: 48,4 m
- Piętro bez skosów: 47,0 m
Działka narożna, ogrodzona, tuż przy lesie,  o powierzchni od 403 m z dwoma miejscami postojowymi w cenie
Dlaczego warto wybrać osiedle przy Czeremchowej?
- Nowoczesna, prosta bryła w ponadczasowym stylu, wolna od skosów na poddaszu, co zwiększa komfort użytkowania.
- Starannie zagospodarowany teren wokół domów: ogrodzenia, wyznaczone miejsca parkingowe, wygodne chodniki.
- Funkcjonalny, uniwersalny układ wnętrz, który cieszy się dużą popularnością: część dzienna, trzy sypialnie i dwie łazienki.
- Prywatny, ogrodzony ogród - idealne miejsce do wypoczynku i zabawy.
- Dwa miejsca postojowe przypisane do każdego domu.
- Urokliwa lokalizacja na lewej stronie Płot, z dala od zgiełku - ciche i spokojne miejsce otoczone lasami, z łatwym dojazdem do centrum miasta w około 15 minut.
- Pełne media: prąd, gaz, woda, kanalizacja z sieci.
- Niskie koszty utrzymania - brak czynszu, opłaty tylko za media.
- Planowane zakończenie inwestycji na koniec 2025 roku.
- Domy wybudowane przez renomowanego dewelopera Zielona Góra Development Walczak & Pacyna Sp. J., działającego na rynku od 14 lat i znanego z wysokiej jakości realizacji.
- Atrakcyjne warunki zakupu: brak PCC, brak prowizji, bezpieczny system transakcyjny oparty na umowach w formie aktu notarialnego i przelewach na rachunek powierniczy.
Układ pomieszczeń w budynku:
Parter składa się z:
- Przestronnego pokoju dziennego (33,4 m) z dużym, przesuwanym oknem na taras, połączonego z kuchnią
- Korytarza (5,8 m) z miejscem na szafę lub garderobę
- Pomieszczenia gospodarczego (4,0 m) z oknem
- Łazienki (4,0 m)
- Klatek schodowej (1,2 m)
Na piętrze czekają na Ciebie:
- Trzy sypialnie: 13,8 m, 10,1 m i 10,4 m
- Korytarz (6,4 m)
- Łazienka z oknem (5,2 m)
- Schody (1,1 m)
Standard wykończenia:
Domy oddawane są w stanie deweloperskim  plus, z pełnym zagospodarowaniem terenu - ogrodzeniem, podjazdami, podejściem do budynku. Budowane z wysokiej jakości materiałów w technologii murowanej, dach kryty dachówką ceramiczną. Ogrzewanie gazowe z kotłem, podłogowe na obu poziomach, zapewniające komfort i oszczędność. Duże okna do podłogi z elektrycznie sterowanymi roletami zewnętrznymi zapewniają doskonałe doświetlenie i prywatność.
Położenie i otoczenie:
Inwestycja zlokalizowana jest na nowym, spokojnym osiedlu w Płotach. W najbliższym sąsiedztwie domy bliźniacze i wolnostojące. Otoczone lasami, co czyni to miejsce idealnym do wypoczynku i aktywnego spędzania czasu. Dobry dojazd do centrum Zielonej Góry - około 15 minut samochodem.
Termin realizacji:
Zakończenie inwestycji planowane jest na koniec 2025 roku.
Dostępne domy:
- Czeremchowa 2/1 - działka 459,88 m - REZERWACJA
- Czeremchowa 2/2 - działka 403 m 
- Czeremchowa 3/1 - działka 233,17 m - REZERWACJA
- Czeremchowa 3/2 - działka 233,03 m - REZERWACJA
- Czeremchowa 3A/1 - działka 232,48 m - REZERWACJA
- Czeremchowa 3A/2 - działka 232,42 m - REZERWACJA
Deweloper:
Firma Zielona Góra Development Walczak & Pacyna Sp. J., rodzinna firma z 14-letnim doświadczeniem w budowie małych osiedli domów wysokiej jakości. Zrealizowała już inwestycje w Zielonej Górze przy ulicy Złotej, Bordowej, Źródlanej, osiedle Wrzosowe w Drzonkowie oraz budynki przy ulicy Łężyca-Geodetów I i II etap.
Dla kupujących dostępny jest bezpieczny system zakupu zgodny z ustawą deweloperską - płatności w transzach na rachunek powierniczy, umowy w formie aktu notarialnego.
Sprzedaż i kontakt:
Wyłącznym przedstawicielem jest firma Apartament. Od 1999 roku zajmujemy się sprzedażą domów, mieszkań i działek na terenie Zielonej Góry i okolic. Oferujemy kompleksowe wsparcie, także przy transakcjach łączonych, gdy zakup nowej nieruchomości jest powiązany z inną.
Dla zainteresowanych kredytami bankowymi - sprawnie i rzetelnie organizujemy finansowanie. Kontakt w sprawie kredytów: Iwona Towpik, tel. +48 696 408 388.
Informacja:
Oferta ma charakter informacyjny i nie stanowi oferty handlowej w rozumieniu art. 66 (1) kodeksu cywilnego oraz innych przepisów prawa.


Mapa

Poleć ofertę znajomemu!

Twoje imię i nazwisko:
Twój adres e-mail:
Adres e-mail znajomego:
Treść:
  • Oferta
    Oferta
  • Oferta
    Oferta
  • Oferta
    Oferta
  • Oferta
    Oferta
  • Oferta
    Oferta
  • Oferta
    Oferta
  • Oferta
    Oferta
  • Oferta
    Oferta
  • Oferta
    Oferta
  • Oferta
    Oferta
  • Oferta
    Oferta
  • Oferta
    Oferta
  • Oferta
    Oferta
  • Oferta
    Oferta
  • Oferta
    Oferta
  • Oferta
    Oferta
  • Oferta
    Oferta
  • Oferta
    Oferta
  • Oferta
    Oferta
  • Oferta
    Oferta
    
  
  


APARTAMENT NIERUCHOMOSCI Hanna Krawczyk
(zobacz oferty biura)
(zobacz pracowników biura)
Kupiecka 45/4
65-058 Zielona Góra
Pokaż dane kontaktowe