Kursy walut(PLN)    4.75 4.76 5.41 4.38
Znajdź na mapie
Typ Cena od Powierzchnia od
do do
Oferta nr 732-13036
Rodzaj obiektuMieszkania
Kategoriamieszkanie
Typsprzedaż
Regiondolnośląskie
MiejscowośćKarpacz
UlicaKarkonoska
WalutaPLN
Cena495 000 PLN
Cena za m2 16 262 PLN
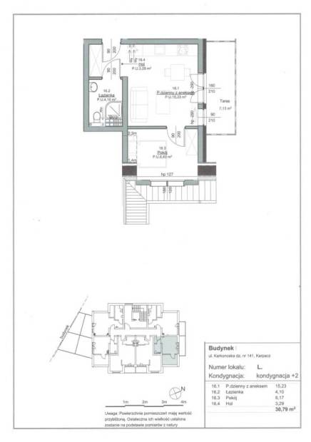
Powierzchnia30.44
Pokoje2
Piętro2
Materiałceramika
Rok budowy2025
Nr oferty732-13036
Data2025-07-23
Licencja zawodowa6692
AgentChojnacki Adam
Telefon514209936
Emailadam.dom@op.pl
Licencja agenta6692
Innewoda,prąd

Opis

Atrakcyjna oferta sprzedaży apartamentu położonego w Karpaczu .Inwestycja w trakcie realizacji w , bardzo dobrej , lokalizacji ,
,.
Lokal położony jest na II piętrze , budynku od strony wschodnio południowej , powierzchnia 30,44 , m2 składa się z przedpokoju , pokoju ogólnego połączonego z aneksem kuchennym , ,sypialni , łazienki i balkonu , . Z okien apartamentu widok na panoramę Karkonoszy .
Zaprojektowane w ramach inwestycji kameralne , apartamentowce stylizowane na styl Karkonoski , odpowiadają wysokim standardom technicznym i architektonicznym .
Technologia budowy tradycyjna , : cegła kratówka , dach dachówka betonowa , tynki gipsowe , drzwi wewnętrzne pełne tzw. typowe stolarka okienna PCV w naturalnym kolorze drzewa , ogrzewanie centralne i ciepła woda z kotłowni lokalnej , winda .
Lokale oddawane do wykończenia indywidualnego bez białego montażu , istnieje możliwość wykończenia , pod tzw. klucz .
Mając na uwadze że w przypadku nieruchomości tzw wakacyjnych liczy się położenie przyszłej inwestycji , nasi stali jaki i nowi klienci bardzo cenią sobie zalety takich lokalizacji które zapewnią wzrost cen apartamentów , dobry wynajem po zakończeniu budowy i stworzą warunki do odpoczynku , oraz , rekreacji . ,
Sprzedaż na zasadzie cesji praw .
Cena 495 000 zł brutto z miejscem postojowym zewnętrznym , .
W celu bliższych informacji zapraszam do kontaktu .
Tel. 514 209 936 , Adam Chojnacki , Nieruchomości Gold House .


Poleć ofertę znajomemu!

Twoje imię i nazwisko:
Twój adres e-mail:
Adres e-mail znajomego:
Treść:
  • Oferta
    Oferta
  • Oferta
    Oferta
  • Oferta
    Oferta
  • Oferta
    Oferta
  • Oferta
    Oferta
  • Oferta
    Oferta
  • Oferta
    Oferta
  • Oferta
    Oferta
  • Oferta
    Oferta
  • Oferta
    Oferta
    
  
  


Nieruchomości GOLD HOUSE
(zobacz oferty biura)
(zobacz pracowników biura)
ul. M. Konipnickiej 1
58-500 Jelenia Góra
Pokaż dane kontaktowe