Kursy walut(PLN)    4.75 4.76 5.41 4.38
Znajdź na mapie
Typ Cena od Powierzchnia od
do do
Oferta nr 732-13199
Rodzaj obiektuMieszkania
Kategoriamieszkanie
Typsprzedaż
Regiondolnośląskie
MiejscowośćKarpacz
WalutaPLN
Cena406 404 PLN
Cena za m2 7 701 PLN
Powierzchnia52.77
Pokoje3
Piętro2
Materiałceramika
Nr oferty732-13199
Data2025-10-26
Licencja zawodowa6692
AgentChojnacki Adam
Telefon514209936
Emailadam.dom@op.pl
Licencja agenta6692
Innegaz,prąd

Opis

Atrakcyjna oferta sprzedaży apartamentu położonego w Karpaczu .
Inwestycja w trakcie realizacji w  bardzo dobrej  lokalizacji  .
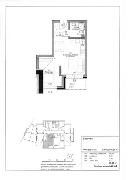
Lokal położony jest na II piętrze    budynku od strony   południowej z widokiem na góry . Powierzchnia apartamentu 30,77  m2 plus poddasze antresola 22 m2  . Pierwszy poziom : przedpokój , pokój ogólny połączonego z aneksem kuchennym  , sypialnia  , łazienka ,  balkon  , drugi poziom poddasze   . Miejsce postojowe zewnętrzny przy budynku . 
Zaprojektowane w ramach inwestycji kameralne  apartamentowce stylizowane na styl Karkonoski , odpowiadają wysokim standardom technicznym i architektonicznym .
Technologia budowy tradycyjna  : cegła kratówka , dach dachówka betonowa , tynki gipsowe , drzwi wewnętrzne pełne tzw. typowe stolarka okienna PCV w naturalnym kolorze drzewa , ogrzewanie centralne i ciepła woda z kotłowni lokalnej , winda .
Lokale oddawane do wykończenia indywidualnego bez białego montażu , istnieje możliwość wykończenia  pod tzw. klucz .
Mając na uwadze że w przypadku nieruchomości tzw wakacyjnych liczy się położenie przyszłej inwestycji , nasi stali jaki i nowi klienci bardzo cenią sobie zalety takich lokalizacji które zapewnią wzrost cen apartamentów , dobry wynajem po zakończeniu budowy i stworzą warunki do odpoczynku  oraz  rekreacji . 
Kwota netto: 406 504,07 PLN  
Kwota brutto:500 000,00 PLN
W tym  VAT:23,00% , 93 495,93 PLN
W cenie zewnętrzne miejsce postojowe .
Sprzedaż na zasadzie cesji praw .
Kontakt Nieruchomości Gold House Jelenia Góra , ofertę prowadzi Adam Chojnacki . 


Poleć ofertę znajomemu!

Twoje imię i nazwisko:
Twój adres e-mail:
Adres e-mail znajomego:
Treść:
  • Oferta
    Oferta
  • Oferta
    Oferta
  • Oferta
    Oferta
  • Oferta
    Oferta
  • Oferta
    Oferta
  • Oferta
    Oferta
  • Oferta
    Oferta
    
  
  


Nieruchomości GOLD HOUSE
(zobacz oferty biura)
(zobacz pracowników biura)
ul. M. Konipnickiej 1
58-500 Jelenia Góra
Pokaż dane kontaktowe