Kursy walut(PLN)    4.75 4.76 5.41 4.38
Znajdź na mapie
Typ Cena od Powierzchnia od
do do
Oferta nr 732-13257
Rodzaj obiektuMieszkania
Kategoriamieszkanie
Typsprzedaż
Regiondolnośląskie
MiejscowośćKarpacz
WalutaPLN
Cena430 000 PLN
Cena za m2 14 333 PLN
Powierzchnia30
Pokoje1
Piętro1
Materiałdowlona
Rok budowy2016
Nr oferty732-13257
Data2025-11-30
Licencja zawodowa6692
AgentChojnacki Adam
Telefon514209936
Emailadam.dom@op.pl
Licencja agenta6692
Innewoda,prąd,meble

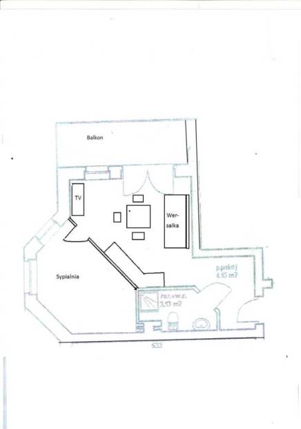
Opis

Atrakcyjna oferta sprzedaży apartamentu położonego w zielonej dzielnicy Karpacza . Lokal położony jest na I piętrze w kilkuletnim budynku o atrakcyjnej Karkonoskiej architekturze . Apartament starannie wykończony o powierzchni 30 m2 składa się z przedpokoju , pokoju ogólnego połączonego z aneksem kuchennym , , łazienki , balkonu , istnieje możliwość wyodrębnienia osobnej sypialni w przyziemiu miejsce garażowe .
Ze względu na lokalizację oferta ta może zapewnić wzrost zainwestowanego kapitału , generuje dochody w przypadku wynajmowania nieruchomości dla turystów , chroni kapitał , stwarza warunki do odpoczynku , rekreacji . Nasi stali jaki i nowi klienci bardzo cenią sobie zalety takich miejsc .
W cenie kompletne wyposażenie widoczne na zdjęciach.
,1.Cena apartamentu 430 000 zł
2. Miejsce garażowe 50 000 zł . Razem cena 480 000 zł .
Szczegółowe informacje Adam Chojnacki tel. 514209936 . Nieruchomości Gold House .


Poleć ofertę znajomemu!

Twoje imię i nazwisko:
Twój adres e-mail:
Adres e-mail znajomego:
Treść:
  • Oferta
    Oferta
  • Oferta
    Oferta
  • Oferta
    Oferta
  • Oferta
    Oferta
  • Oferta
    Oferta
  • Oferta
    Oferta
  • Oferta
    Oferta
  • Oferta
    Oferta
  • Oferta
    Oferta
  • Oferta
    Oferta
  • Oferta
    Oferta
    
  
  


Nieruchomości GOLD HOUSE
(zobacz oferty biura)
(zobacz pracowników biura)
ul. M. Konipnickiej 1
58-500 Jelenia Góra
Pokaż dane kontaktowe