Kursy walut(PLN)    4.75 4.76 5.41 4.38
Znajdź na mapie
Typ Cena od Powierzchnia od
do do
Oferta nr 589-15793WYŁĄCZNOŚĆ
Rodzaj obiektuMieszkania
Kategoriamieszkanie
Typsprzedaż
Regionśląskie
MiejscowośćTarnowskie Góry
UlicaŻwirki i Wigury
WalutaPLN
Cena175 050 PLN
Cena za m2 4 500 PLN
Powierzchnia38.9
Pokoje2
Materiałdowlona
Nr oferty589-15793
Data2026-01-09
Licencja zawodowa22575
AgentKlary Aleksandra
Telefon608072298
Emailbiuro@wb.nieruchomosci.pl
Licencja agenta22575
Innewoda,gaz,prąd,meble

Opis

Jesienna promocja cenowa
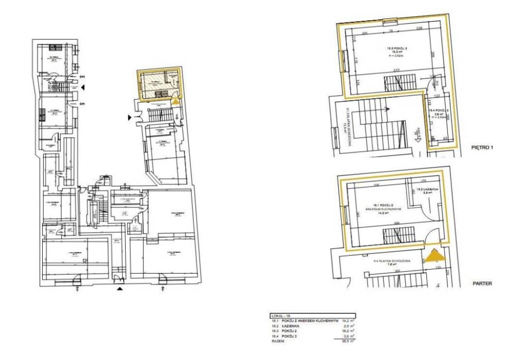
Na sprzedaż mieszkanie dwupoziomowe w Centrum Tarnowskich Gór, oficyna.
Na parterze pokój z aneksem kuchennym + łazienka. 
Na piętrze - pokój 18,2m2 + garderoba 3,6m2
Główne zalety mieszkania:
- centralna lokalizacja
- możliwość wykończenia mieszkania wg własnego pomysłu
- wydzielona piętrami strefa dzienna i nocna
Dodatkowe możliwości:
- zakup miejsca postojowego
- najem powierzchni w piwnicy   
- wybór mieszkania - inne powierzchnia, piętro ,ilość pokoi
Budynek/media/lokalizacja
- kamienica położona w centrum miasta
- wyremontowana klatka schodowa
- wymienione instalacje wod-kan
- ogrzewanie i ciepła woda we własnym zakresie przy wykorzystaniu instalacji gazowej
- kanalizacja miejska
- dostępność do szerokiej infrastruktury (szkoła, przedszkole, sklepy, przychodnia, autobus)
Zapraszamy na prezentację.
Powyższa oferta ma charakter informacyjny i nie stanowi oferty handlowej w rozumieniu art.66 1 kodeksu cywilnego oraz innych właściwych przepisów prawnych.
Jako biuro oferujemy Państwu kompleksową obsługę poprzez:
- wybór najodpowiedniejszej dla Państwa nieruchomości,
- pomoc w uzyskaniu najbardziej korzystnego finansowania
- pomoc w załatwieniu wszelkich formalności związanych z przeniesieniem własności dokumenty do aktu notarialnego, przepisanie mediów, kwestie związane z podatkiem od nieruchomości).
Zapraszamy do współpracy.
Zachęcamy do zapoznania się z innymi naszymi ofertami na www.wb.nieruchomosci.pl


Mapa

Poleć ofertę znajomemu!

Twoje imię i nazwisko:
Twój adres e-mail:
Adres e-mail znajomego:
Treść:
  • Oferta
    Oferta
  • Oferta
    Oferta
  • Oferta
    Oferta
  • Oferta
    Oferta
  • Oferta
    Oferta
  • Oferta
    Oferta
  • Oferta
    Oferta
    
  
  


W&B Nieruchomości s.c.
(zobacz oferty biura)
(zobacz pracowników biura)
ul. Rynek 2/1
42 - 60 Tarnowskie Góry
Pokaż dane kontaktowe