Kursy walut(PLN)    4.75 4.76 5.41 4.38
Znajdź na mapie
Typ Cena od Powierzchnia od
do do
Oferta nr 13-44197
Rodzaj obiektuMieszkania
Kategoriamieszkanie
Typsprzedaż
Regionmazowieckie
MiejscowośćWarszawa
DzielnicaRembertów
UlicaChełmżyńska
WalutaPLN
Cena477 144 PLN
Cena za m2 14 100 PLN
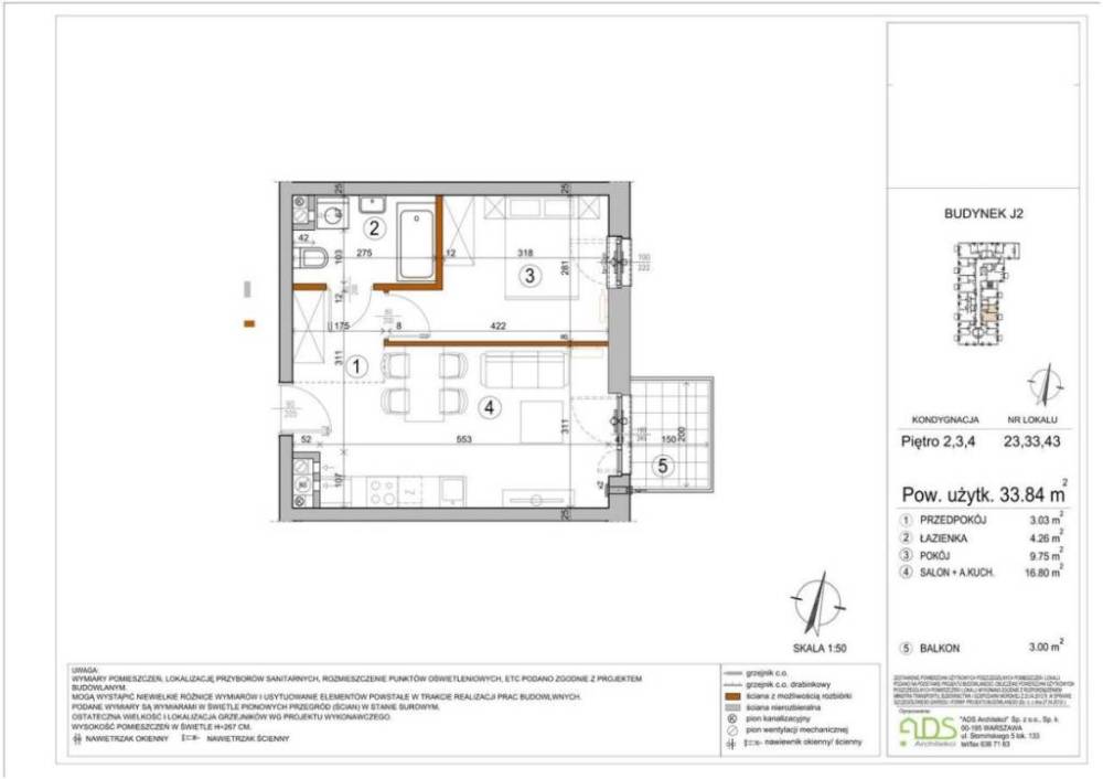
Powierzchnia33.84
Pokoje2
Piętro3
Materiałdowlona
Rok budowy2025
Nr oferty13-44197
Data2025-09-03
Licencja zawodowa4145
AgentKobryński Waldemar
Telefon22 669 07 22
Emailgrewal@onet.pl
Licencja agenta4145

Opis

Mieszkanie 2 pokojowe o pow. 33,84 m2, 3 piętro.
Planowany odbiór inwestycji to 31 12 2025 roku.
KUPNO BEZPOŚREDNIO OD DEWELOPERA. ,
POSIADAMY INNE MIESZKANIA W TEJ INWESTYCJI.
KONTAKT: 509 466 274
Więcej ofert na stronach biura: www.grewal.com.pl lub kobrynski.pl
- CENA MIEJSCA POSTOJOWEGO W GARAŻU PODZIEMNYM 39.000 zł brutto (8% VAT),
- CENA MIEJSCA POSTOJOWEGO NAZIEMNEGO: 27.000 zł brutto (8% VAT),
- ZAKUP GARAŻU JEST OBOWIĄZKOWY DLA MIESZKAŃ 2- I 3-POKOJOWYCH.
- CENA KOMÓRKI LOKATORSKIEJ: 6.500 zł/m2 brutto (8% VAT)
Inwestycja tuż obok lasu Rembertowskiego nazywanego wschodnim płucem Warszawy. Jest to leśna oaza, otoczona bujną zielenią, w której życie staje się spokojne i komfortowe. Tutaj odnajdziesz wewnętrzną harmonię, a jeżeli zabraknie Ci miejskiego szumu to w zaledwie 20 minut dojedziesz do samego serca wesołego Warszawskiego zgiełku.
Wysokość pomieszczeń: w zależności od kondygnacji od 260 do 280 cm wysokości.
Standard wykończenia: standard deweloperski
Rodzaj własności: odrębna własność z własnością gruntu.
Udogodnienia: teren zabaw, teren ogrodzony z kontrolą dostępu, ogródki przy lokalach na parterze winda,
Sąsiedztwo: Las Rembertowski sąsiadujący bezpośrednio z osiedlem, sklepy i usługi na terenie inwestycji, przystanek komunikacji miejskiej na przeciwko osiedla (linia 145 Żerań FSO - Wiatraczna)


Mapa

Poleć ofertę znajomemu!

Twoje imię i nazwisko:
Twój adres e-mail:
Adres e-mail znajomego:
Treść:
  • Oferta
    Oferta
  • Oferta
    Oferta
  • Oferta
    Oferta
  • Oferta
    Oferta
  • Oferta
    Oferta
  • Oferta
    Oferta
    
  
  


Nieruchomości Waldemar Kobryński
(zobacz oferty biura)
(zobacz pracowników biura)
ul.Broniewskiego 28
01-771 Warszawa
Pokaż dane kontaktowe