Kursy walut(PLN)    4.75 4.76 5.41 4.38
Znajdź na mapie
Typ Cena od Powierzchnia od
do do
Oferta nr 13-44179
Rodzaj obiektuMieszkania
Kategoriamieszkanie
Typsprzedaż
Regionmazowieckie
MiejscowośćWarszawa
DzielnicaTargówek
UlicaRzepichy
WalutaPLN
Cena1 350 976 PLN
Cena za m2 12 236 PLN
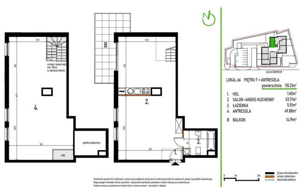
Powierzchnia110.41
Pokoje1
Piętro7
Materiałdowlona
Rok budowy2025
Nr oferty13-44179
Data2026-02-10
Licencja zawodowa4145
AgentTomczyk Marek
Emailm.tomczyk.nieruchomosci@gmail.com
Licencja agenta4145
Innemeble

Opis

Nowoczesnemieszkanie z antresolą 110,41 m i tarasem 14,19 m - 7. piętro- Targówek, ul. Rzepichy.
Cena: 1 350 976 zł
Bezpośredniood dewelopera.
Na sprzedaż wyjątkowe mieszkanie z antresolą o łącznej powierzchni ,110,41 ,m oraz przestronnym tarasem o powierzchni ,14,19 ,m, zlokalizowane na ostatnim,8. piętrze nowoczesnego budynku z windą przy ul. Rzepichy na warszawskim Targówku.
To idealna propozycja dla osób szukających przestrzeni z potencjałem aranżacyjnym - wysokie sufity, otwarta przestrzeń i antresola tworzą niepowtarzalny klimat miejskiego loftu, a taras staje się naturalnym przedłużeniem strefy dziennej - idealnym na relaks czy spotkania przy kawie. ,
Inwestycja:
Nowoczesna inwestycja powstająca na Targówku to idealna propozycja dla osób szukających wygodnego mieszkania w doskonałej lokalizacji.
Starannie zaprojektowany budynek o nowoczesnym wzornictwie to idealne miejsce dla rodzin z dziećmi, singli, młodych małżeństw czy osób starszych. W otoczeniu terenów zielonych i pełnej miejskiej infrastruktury, mieszkańcy mogą odetchnąć od zgiełku miasta w kameralnym zakątku starej części dzielnicy.
Inwestycja obejmuje 8-piętrowy budynek z 78 mieszkaniami 1-, 2-,3- i 4-pokojowymi o powierzchni od 40 do 130 m, z głębokimi balkonami, przestronnymi tarasami i dużymi ogródkami.
Do dyspozycji mieszkańców:
- Miejsca postojowe w garażach podziemnych i naziemnych
- Boksy rowerowe
- Urokliwa strefa rekreacji na patio
- Szlachetne materiały wykończeniowe w częściach wspólnych
Szczegóły mieszkania: ,
- Powierzchnia całkowita: ,110,41 ,m
- Poziom: 7. piętro (z windą)
- Antresola z możliwością dowolnej aranżacji (np. sypialnia, biuro, strefa relaksu)
- Taras o powierzchni ,14,19 ,m - z pięknym widokiem i dużą prywatnością
- Mieszkanie w stanie deweloperskim
- Komórka lokatorska
- Miejsce postojowe w garażu podziemnym
Lokalizacja - Targówek, ul.Rzepichy:
Świetnie skomunikowana lokalizacja z dostępem do pełnej infrastruktury: ,
- 3 min pieszo do sklepu osiedlowego i psiego parku
- 6 min pieszo do pętli autobusowej
- 11 min pieszo do żłobka
- 15 min pieszo do szkoły podstawowej i pływalni Polonez
- 17 min pieszo do Atrium Targówek
- 15 min pieszo do stacji metra
- 20 min pieszo do Parku Bródnowskiego i Lasu Bródnowskiego
- 5 min autem do trasy S8
- 16 min autem do centrum Warszawy
Dlaczego warto?
- Przestronny taras ,14,19 ,m z widokiem ponad dachami miasta
- Antresola i otwarta przestrzeń dają ogromne możliwości aranżacyjne
- Nowoczesna inwestycja w spokojnej części Targówka
Posiadamy również inne lokale w tej inwestycji.
Zadzwoń i umów się na prezentację!
Zamieszkaj nowocześnie, wysoko i wygodnie - z własnym tarasem, antresolą i świetnym dojazdem do centrum! ,
Kontakt:
Marek 509 165 458
Więcej ofert na stronach: kobrynski.pl, www.grewal.com.pl


Mapa

Poleć ofertę znajomemu!

Twoje imię i nazwisko:
Twój adres e-mail:
Adres e-mail znajomego:
Treść:
  • Oferta
    Oferta
  • Oferta
    Oferta
  • Oferta
    Oferta
  • Oferta
    Oferta
  • Oferta
    Oferta
    
  
  


Nieruchomości Waldemar Kobryński
(zobacz oferty biura)
(zobacz pracowników biura)
ul.Broniewskiego 28
01-771 Warszawa
Pokaż dane kontaktowe