Kursy walut(PLN)    4.75 4.76 5.41 4.38
Znajdź na mapie
Typ Cena od Powierzchnia od
do do
Oferta nr 13-44180
Rodzaj obiektuMieszkania
Kategoriamieszkanie
Typsprzedaż
Regionmazowieckie
MiejscowośćWarszawa
DzielnicaTargówek
UlicaRzepichy
WalutaPLN
Cena1 289 849 PLN
Cena za m2 11 932 PLN
Powierzchnia108.1
Pokoje1
Piętro7
Materiałdowlona
Rok budowy2025
Nr oferty13-44180
Data2026-02-10
Licencja zawodowa4145
AgentTomczyk Marek
Emailm.tomczyk.nieruchomosci@gmail.com
Licencja agenta4145
Innemeble

Opis

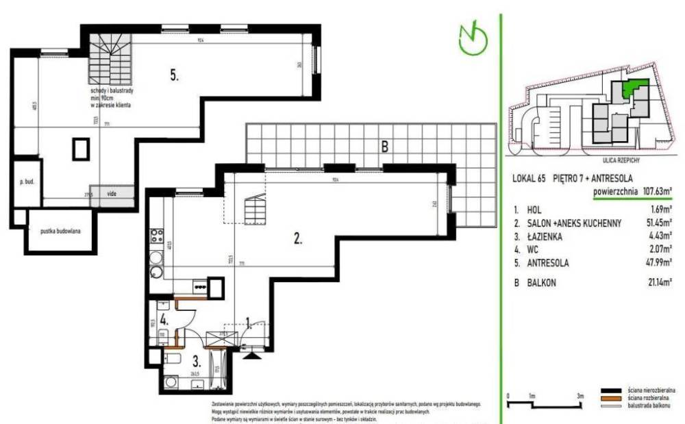
3-pokojowe nowoczesne mieszkanie z dużym balkonem 21,14m - 7. piętro - Targówek, ul. Rzepichy
Cena: 1 289 849 zł
Bezpośrednio od dewelopera
Na sprzedaż komfortowe, 3-pokojowe mieszkanie o powierzchni 59,66 m zprzestronnym balkonem 21,14 m, położone na ostatnim - 6. piętrze nowoczesnegobudynku z windą, przy ul. Rzepichy na warszawskim Targówku.
Przemyślany układ pomieszczeń zapewnia wygodę zarówno rodzinie, jak i parze czysinglowi poszukującemu przestrzeni do życia i pracy w jednym miejscu.
Rozkład pomieszczeń:
- Salon z aneksem kuchennym - 23,52 m
- Sypialnia 1 - 9,94 m
, , , , , , Sypialnia 2 - 12,33 m
, , , , , , Łazienka - 4,43 m
, , , , , , Oddzielne WC - 2,07 m
, , , , , , Przestronny balkon - 21,14 m
Mieszkanie jest w stanie deweloperskim - gotowe do aranżacjiwedług własnych potrzeb i gustu. Dzięki położeniu na ostatnim piętrze,mieszkanie oferuje dużą prywatność oraz piękny widok na panoramę miasta. ,
Dodatkowe informacje:
, , , , , ,Powierzchnia całkowita: ,59,66 m ,
, , , , , ,Piętro: 7 z windą
, , , , , ,Balkon: 21,14 m
, , , , , ,Miejsce postojowe w garażu podziemnym
, , , , , ,Komórka lokatorska
, , , , , ,Ekspozycja zapewniająca dobre nasłonecznienie iwidok ponad dachami
Inwestycja: Nowoczesny, 8-piętrowy budynek z 78mieszkaniami o zróżnicowanych metrażach, idealny dla rodzin, singli i seniorów.Położony w zielonej i spokojnej części Targówka, blisko miejskiejinfrastruktury.
Do dyspozycji mieszkańców:
, , , , , ,Garaż podziemny i miejsca postojowe naziemne
, , , , , ,Boksy rowerowe
, , , , , ,Zielone patio ze strefą relaksu
, , , , , ,Wysokiej klasy wykończenie części wspólnych
Lokalizacja - Targówek, ul. Rzepichy:
, , , , , ,3 min pieszo do sklepu osiedlowego i psiegoparku
, , , , , ,6 min pieszo do pętli autobusowej
, , , , , ,11 min pieszo do żłobka
, , , , , ,15 min pieszo do szkoły podstawowej i pływalniPolonez
, , , , , ,17 min pieszo do Atrium Targówek
, , , , , ,15 min pieszo do stacji metra
, , , , , ,20 min pieszo do Parku i Lasu Bródnowskiego
, , , , , ,5 min samochodem do trasy S8
, , , , , ,16 min samochodem do centrum Warszawy
Dlaczego warto?
Przestronny balkon 21,14 m z widokiem na panoramę miasta
Funkcjonalny układ 3 pokoi + oddzielna łazienka i WC
Inwestycja w spokojnej, zielonej części Targówka z doskonałą komunikacją
Posiadamy również inne lokale w tej inwestycji.
Zadzwoń i umów się na prezentację!
Zamieszkaj nowocześnie, wysoko i wygodnie - z własnym tarasem, antresolą iświetnym dojazdem do centrum! ,
Kontakt:
Marek 509 165 458
Więcej ofert na stronach: kobrynski.pl, www.grewal.com.pl


Mapa

Poleć ofertę znajomemu!

Twoje imię i nazwisko:
Twój adres e-mail:
Adres e-mail znajomego:
Treść:
  • Oferta
    Oferta
  • Oferta
    Oferta
  • Oferta
    Oferta
  • Oferta
    Oferta
  • Oferta
    Oferta
    
  
  


Nieruchomości Waldemar Kobryński
(zobacz oferty biura)
(zobacz pracowników biura)
ul.Broniewskiego 28
01-771 Warszawa
Pokaż dane kontaktowe