Kursy walut(PLN)    4.75 4.76 5.41 4.38
Znajdź na mapie
Typ Cena od Powierzchnia od
do do
Oferta nr 13-44017
Rodzaj obiektuMieszkania
Kategoriamieszkanie
Typsprzedaż
Regionmazowieckie
MiejscowośćWarszawa
DzielnicaWawer
UlicaGoździków
WalutaPLN
Cena1 014 260 PLN
Cena za m2 16 600 PLN
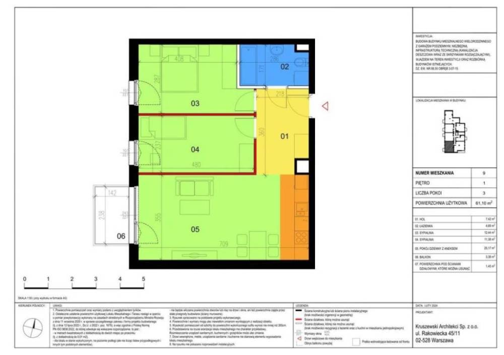
Powierzchnia61.1
Pokoje3
Piętro1
Materiałdowlona
Rok budowy2026
Nr oferty13-44017
Data2026-02-01
Licencja zawodowa4145
AgentKobryński Waldemar
Telefon22 669 07 22
Emailgrewal@onet.pl
Licencja agenta4145

Opis

  3 pokojowe mieszkanie o pow.61,1 m2, 1 piętro
Stan developerski.
Planowany termin zakończenia inwestycji to 30 03 2026 roku
Zakup bezpośrednio od developera. Kupujący nie płaci prowizji oraz jest zwolniony z 2% podatku od czynności cywilno-prawnych.
Posiadamy w ofercie inne apartamenty z tej inwestycji.
KONTAKT: 509 466 274
Osiedle zamknięte.
Ochrona:domofon, drzwi antywłamaniowe, monitoring, ochrona.
Apartamenty Nowy Marysin to kilkanaście budynków tworzące małe miasteczko ,w którym znajdą się lokale usługowe,kawiarnie,sklepy.Pozwoli to na zaspokojenie wszelkich potrzeb mieszkańców na miejscu.
Bliskość węzła komunikacyjnego Płowiecka-Marsa i stacji kolejowej PKP Warszawa Gocławek oraz centrów handlowych spowodują,że życie w tej okolicy z pewnością zadowoli i zaspokoi wszelkie potrzeby przyszłych mieszkańców Osiedla.


Mapa

Poleć ofertę znajomemu!

Twoje imię i nazwisko:
Twój adres e-mail:
Adres e-mail znajomego:
Treść:
  • Oferta
    Oferta
  • Oferta
    Oferta
  • Oferta
    Oferta
  • Oferta
    Oferta
    
  
  


Nieruchomości Waldemar Kobryński
(zobacz oferty biura)
(zobacz pracowników biura)
ul.Broniewskiego 28
01-771 Warszawa
Pokaż dane kontaktowe