Kursy walut(PLN)    4.75 4.76 5.41 4.38
Znajdź na mapie
Typ Cena od Powierzchnia od
do do
Oferta nr 13-44257
Rodzaj obiektuMieszkania
Kategoriamieszkanie
Typsprzedaż
Regionmazowieckie
MiejscowośćWarszawa
DzielnicaWola
UlicaKolejowa
WalutaPLN
Cena1 475 631 PLN
Cena za m2 27 031 PLN
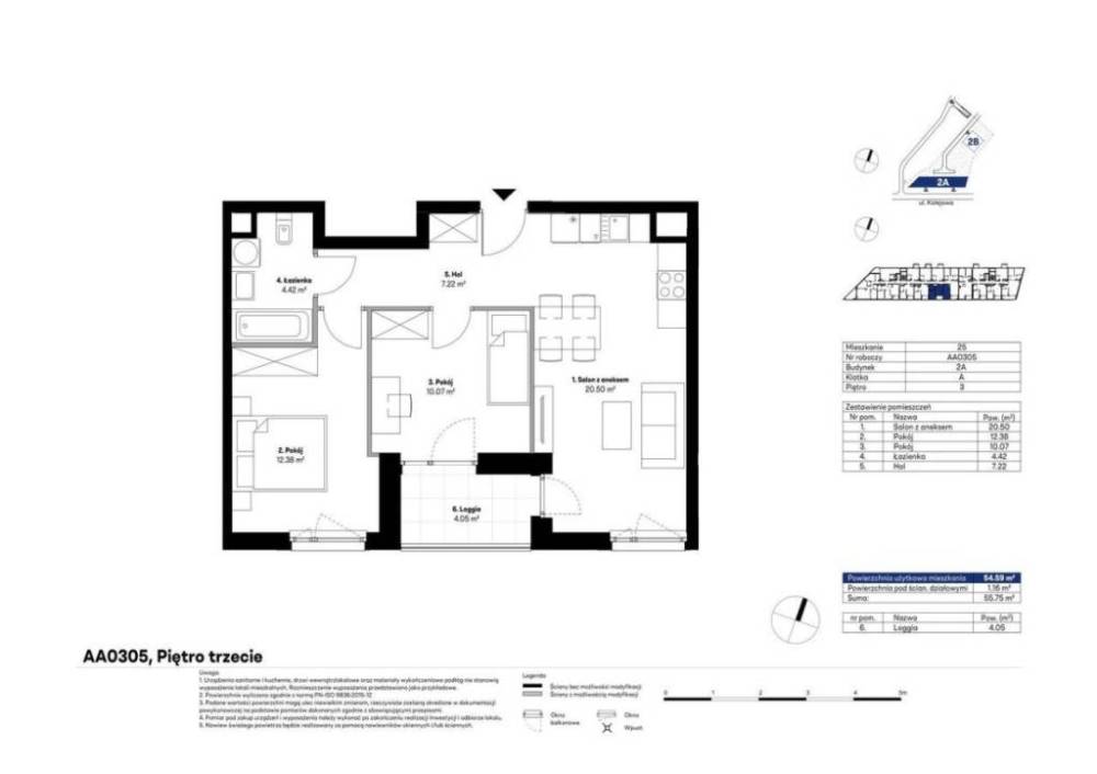
Powierzchnia54.59
Pokoje3
Piętro3
Materiałzróżnicowany
Rok budowy2026
Nr oferty13-44257
Data2025-09-05
Licencja zawodowa4145
AgentOlechowski Stanisław
Telefon22 669 07 22
Emailk.olechowski@op.pl
Licencja agenta4145

Opis

Wykończone pod klucz
Osiedle zlokalizowane jest przy ul. Kolejowej, a więc w ścisłym centrum Warszawy. Przestrzeń osiedla zorganizowana będzie zgodnie ze skandynawskim porządkiem, dlatego w ramach przestrzeni wspólnej powstanie przestronny park z placem zabaw, siłownią zewnętrzną, stołami do gier i tężnią. Nie zabraknie zielonych rozwiązań. Mieszkania będą wyposażone w system smart home Appartme by Skanska, dzięki któremu za pomocą aplikacji można kontrolować zużycie energii i ciepła. Zamontowane w oknach filtry antysmogowe pozwolą na oddychanie czystym powietrzem a woda retencjonowana w zbiornikach na deszczówkę nawodni tereny zielone.
Powyższa prezentacja nie stanowi oferty w rozumieniu odpowiednich przepisów kodeksu cywilnego.
Więcej ofert na stronach: kobrynski.pl, www.grewal.com.pl
Kontakt: 516438828


Mapa

Poleć ofertę znajomemu!

Twoje imię i nazwisko:
Twój adres e-mail:
Adres e-mail znajomego:
Treść:
  • Oferta
    Oferta
  • Oferta
    Oferta
  • Oferta
    Oferta
    
  
  


Nieruchomości Waldemar Kobryński
(zobacz oferty biura)
(zobacz pracowników biura)
ul.Broniewskiego 28
01-771 Warszawa
Pokaż dane kontaktowe