Kursy walut(PLN)    4.75 4.76 5.41 4.38
Znajdź na mapie
Typ Cena od Powierzchnia od
do do
Oferta nr 710-167
Rodzaj obiektuMieszkania
Kategoriamieszkanie
Typsprzedaż
Regiondolnośląskie
MiejscowośćWrocław
DzielnicaKrzyki
Ulicaks. Czesława Klimasa
WalutaPLN
Cena865 000 PLN
Cena za m2 11 503 PLN
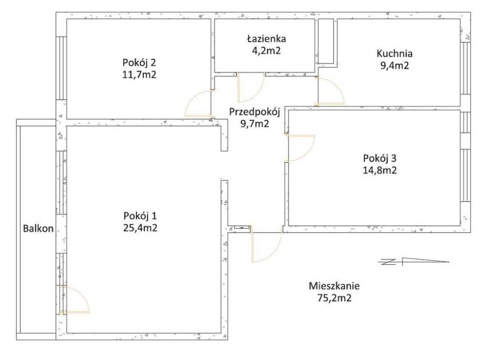
Powierzchnia75.2
Pokoje3
Piętro2
Materiałdowlona
Rok budowy1998
Nr oferty710-167
Data2026-01-28
Licencja zawodowa20692
AgentDziechciarczyk Ewa
Emailewa.varto@gmail.com
Licencja agenta20692
Innewoda,gaz,prąd

Opis

Trzypokojowe mieszkanie z osobną kuchnią (pełny rozkład) i balkonem, w spokojnej części Tarnogaju. Do kupienia z miejscem postojowym w garażu podziemnym.
KUPUJĄCY NIE PŁACI PROWIZJI, WYNAGRODZENIE BIURA W CAŁOŚCI POKRYWA WŁAŚCICIEL MIESZKANIA. 
Trzy niezależne pokoje:
- bardzo duży salon (25,4m2) z wyjściem na balkon,
- sypialnia (15 m2), 
- sypialnia (12 m2).
Osobna pełnowymiarowa jasna kuchnia (z oknem), umeblowana i wyposażona w AGD: lodówkę, zmywarkę, płytę gazową, piekarnik i okap. Dużo blatu roboczego, stolik w kąciku śniadaniowym. 
Łazienka z wanną, wyposażona w pralkę.
W mieszkaniu wszystkie potrzebne do zamieszkania meble i sprzęty - rozkładana narożna sofa, tapicerowane podwójne łóżko, duży rozkładany stół i krzesła.
Wszystkie pomieszczenia bardzo ustawne, dużo przestrzeni i światła. Na podłogach w pokojach piękne dębowe parkiety.     
Dwustronna ekspozycja okien - od strony zielonego podwórka oraz od kameralnej ulicy Klimasa. Cisza i spokój, a równocześnie 3 minuty spacerem do ulicy Tarnogajskiej (tramwaj, autobus, sklepy, usługi).
Zadbany budynek, czysta klatka schodowa, domofon.
Mieszkanie do kupienia z miejscem postojowym w garażu podziemnym za dodatkową cenę 33.000 zł.
Dodatkowo  GRATIS  prawo do użytkowania ogródka działkowego 300 m2.
---
Niniejsze ogłoszenie nie stanowi oferty w rozumieniu art. 66 KC.


Mapa

Poleć ofertę znajomemu!

Twoje imię i nazwisko:
Twój adres e-mail:
Adres e-mail znajomego:
Treść:
  • Oferta
    Oferta
  • Oferta
    Oferta
  • Oferta
    Oferta
  • Oferta
    Oferta
  • Oferta
    Oferta
  • Oferta
    Oferta
  • Oferta
    Oferta
  • Oferta
    Oferta
  • Oferta
    Oferta
  • Oferta
    Oferta
  • Oferta
    Oferta
  • Oferta
    Oferta
  • Oferta
    Oferta
  • Oferta
    Oferta
  • Oferta
    Oferta
  • Oferta
    Oferta
  • Oferta
    Oferta
  • Oferta
    Oferta
  • Oferta
    Oferta
    
  
  


Ewa Dziechciarczyk
(zobacz oferty biura)
(zobacz pracowników biura)
ul. Budziszyńska 27/30
54-434 Wrocław
Pokaż dane kontaktowe