Kursy walut(PLN)    4.75 4.76 5.41 4.38
Znajdź na mapie
Typ Cena od Powierzchnia od
do do
Oferta nr 301-15242WYŁĄCZNOŚĆ
Rodzaj obiektuMieszkania
Kategoriamieszkanie
Typsprzedaż
Regionlubuskie
MiejscowośćZielona Góra
DzielnicaNowy Kisielin
WalutaPLN
Cena639 000 PLN
Cena za m2 8 500 PLN
Powierzchnia75.18
Pokoje3
Materiałdowlona
Rok budowy2026
Nr oferty301-15242
Data2026-01-08
AgentHozakowska Marta
Telefon+48665778799
Emailmarta.hozakowska@apartament.net.pl
Licencja agenta1717
Innewoda,gaz,prąd

Opis

Nowe osiedle domów w zabudowie bliźniaczej w Nowym Kisielinie od sprawdzonego dewelopera !
Nad Strumykiem II
Kupujący nie płaci prowizji i PCC! ,
Szczegóły u Marty Hozakowskiej tel. 665 778799
Nowa oferta nieruchomości usytuowanych w Nowym Kisielinie przy ul. Strumykowej. Idealna dla osób, które pragną mieszkać w sąsiedztwie drzew i terenów zielonych, a jednocześnie blisko miasta.
Kameralne osiedle składa się z:
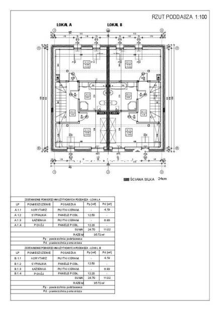
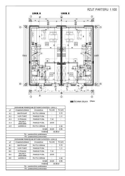
o ,4 budynków dwulokalowych, każdy lokal o powierzchni 75,18m2, każdy lokal z własnym ogrodem
o ,1 budynku dwulokalowego, każdy lokal o powierzchni 108,51m2, każdy lokal z własnym ogrodem
WYKAZ LOKALI:
o ,Lokal A1 - działka ,260m2, , ,powierzchnia użytkowa ,75,18m2 ,cena ,639.000,00 zł
o ,Lokal A2 - działka 363 m2, powierzchnia użytkowa75,18m2- ,cena ,639.000,00 zł - REZERWACJA
o ,Lokal B1 - działka , ,240m2, ,powierzchnia użytkowa75,18m2-cena ,639.000,00 zł
o ,Lokal B2 - działka ,331 ,m2, ,powierzchnia użytkowa75,18m2-cena ,639.000,00 zł
o ,Lokal C1-działka ,353m2, ,powierzchnia użytkowa75,18m2-cena ,659.000,00 zł - REZERWACJA
o ,Lokal C2-działka , ,260m2, ,powierzchnia użytkowa75,18m2- cena ,659.000,00 zł
o ,Lokal D1-działka , ,300m2, ,powierzchnia użytkowa75,18m2 ,- cena , ,659.000,00 zł
o ,Lokal D2-działka , ,322m2, powierzchnia użytkowa75,18m2- cena , ,659.000,00 zł
o ,Lokal E1 - działka , ,500m2, powierzchnia użytkowa ,1 ,08,51m2 ,-cena , ,859.000,00 zł
o ,Lokal E2 - działka , ,450m2, ,powierzchnia użytkowa108,51m2 ,-cena , ,859.000,00 zł
Do każdego lokalu miejsce parkingowe w cenie!
STANDARD WYKOŃCZENIA:
Lokale oddawane w ,stanie deweloperskim, z ,pełnym zagospodarowaniem terenu - miejsca postojowe, droga wewnętrzna oraz ciągi piesze. ,
o ,Ściany z prefabrykatów betonowych z keramzytem grubości 15cm.
o ,Okna 3 szybowe, PVC, kolor biały w środku, antracyt na zewnątrz, przygotowanie pod montaż rolet - skrzynki w zabudowie plus zasilanie.
o ,Drzwi z przeszkleniem, kolor antracyt (RAL7016).
o ,Poddasze użytkowe
o ,Dach - konstrukcja drewniana - więźba dachowa.
o ,Pokrycie dachu, dachówka betonowa koloru grafitowego
o ,Wentylacja grawitacyjna
o ,Elewacja - styropian grubości 20cm.
o ,Domy wybudowane będą na płytach fundamentowych.
Media:prąd, wodociąg z ,miasta, kanalizacja, ogrzewanie gazowe, ŚWIATŁOWÓD
Terminy: ,
Planowane zakończenie prac-SIERPIEŃ 2026r.
O osiedlu:
Osiedle położone w bliskiej odległości od centrum Zielonej Góry, jednocześnie w otoczeniu terenów zielonych. Niedaleko znajdują się przystanek autobusowy, apteka, przedszkole, szkoła, sklepy, markety, siłownia.
Agent prowadzący:
Marta Hozakowska
TEL. * 665 778 799
EMAIL: * marta.hozakowska@apartament.net.pl
Apartament Nieruchomości świadczy usługi w zakresie sprzedaży i wynajmu domów, mieszkań, działek na terenie Zielonej Góry i okolic od 1999 r. Sprawnie przeprowadzamy transakcje łączone, regulujemy stany prawne nieruchomości, organizujemy kredyty na zakup nieruchomości.
,
Zlecenie realizowane pod nadzorem licencjonowanego pośrednika nr licencji1717.
Poniższa oferta ma charakter informacyjny, nie stanowi oferty handlowej w ,rozumieniu art. 66 (1) kodeksu cywilnego oraz innych właściwych przepisów prawnych. Wizualizacja w ofercie ma charakter poglądowy.


Mapa

Poleć ofertę znajomemu!

Twoje imię i nazwisko:
Twój adres e-mail:
Adres e-mail znajomego:
Treść:
  • Oferta
    Oferta
  • Oferta
    Oferta
  • Oferta
    Oferta
  • Oferta
    Oferta
  • Oferta
    Oferta
  • Oferta
    Oferta
  • Oferta
    Oferta
    
  
  


APARTAMENT NIERUCHOMOSCI Hanna Krawczyk
(zobacz oferty biura)
(zobacz pracowników biura)
Kupiecka 45/4
65-058 Zielona Góra
Pokaż dane kontaktowe