Kursy walut(PLN)    4.75 4.76 5.41 4.38
Znajdź na mapie
Typ Cena od Powierzchnia od
do do
Oferta nr 188-13141WYŁĄCZNOŚĆ
Rodzaj obiektuObiekty
Kategoriamagazynowy
Typsprzedaż
Regionmazowieckie
MiejscowośćRadom
DzielnicaJeżowa Wola
UlicaWielkopolska
WalutaPLN
Cena1 800 000 PLN
Pow.działki(m2)3084
Cena za m2 2 416 PLN
Powierzchnia744.97
Kondygnacje4
Materiałpustak
Rok budowy1975
Nr oferty188-13141
Data2026-03-24
Licencja zawodowa624
AgentParzelska Monika
Telefon502392837
Emailmonika@miklewscy.com.pl
Licencja agenta624
Innewoda,prąd,kanalizacja

Opis

OGŁOSZENIE SPRZEDAŻY NIERUCHOMOŚCI PRZEMYSŁOWO-MAGAZYNOWEJ, ,
Na sprzedaż funkcjonalny obiekt przemysłowo-magazynowy o łącznej powierzchni użytkowej 744,97 m, stanowiący odrębną własność, zlokalizowany na działce o powierzchni 3084 m (użytkowanie wieczyste) przy ul. Wielkopolskiej w Radomiu.
Budynek w bardzo dobrym stanie technicznym, gotowy do użytkowania.
OPIS BUDYNKU
Budynek czterokondygnacyjny, niepodpiwniczony, składa się z dwóch części:
Część socjalno-biurowa (4 kondygnacje):
Parter: pomieszczenia biurowe, toaleta
I piętro: pomieszczenia socjalne, łazienki z kabinami prysznicowymi oraz toalety
II piętro: laboratorium oraz pomieszczenie biurowe
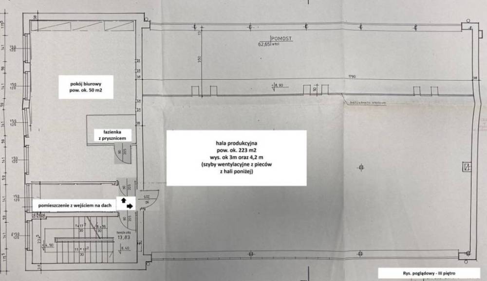
III piętro: pomieszczenie z łazienką (prysznic i toaleta)
Część produkcyjna:
Parter: magazyny, kotłownia, hala o pow. ok. 85 m (wysokość 3,6 m)
I piętro: hala o pow. ok. 216 m (wysokość 4,9 m) z windą towarową o udźwigu do 1000 kg
III piętro (połączenie z częścią biurową): hala o pow. 223 m (wysokość od 2,7 m do 4,2 m)
STANDARD I TECHNOLOGIA
Budynek w technologii tradycyjnej (murowany): pustak gazobetonowy oraz cegła ceramiczna
Ocieplenie: styropian 10 cm, elewacja wykończona tynkiem akrylowym
Stropy żelbetowe z płyt kanałowych
Dach kryty papą
Okna PCV (wymienione w 2006 roku)
WYPOSAŻENIE I INSTALACJE
Ogrzewanie: piec na ekogroszek
Przyłącze energetyczne o mocy 150 kW
Światłowód
System alarmowy
Monitoring
DODATKOWE INFORMACJE
Obiekt po dawnej odlewni metali kolorowych (cyna, ołów)
Nieruchomość ogrodzona, z bramą wjazdową przesuwną stalową
Teren uzbrojony w sieć wodociągową, kanalizację sanitarną, energię elektryczną oraz sieć telekomunikacyjną
W cenie udział w drodze wewnętrznej dojazdowej
PRZEZNACZENIE TERENU
Działka objęta miejscowym planem zagospodarowania przestrzennego Potkanów - etap I z dnia 27.08.2018 r.
PODSUMOWANIE
Nieruchomość odpowiednia pod działalność produkcyjną, magazynową, logistyczną lub usługową. Funkcjonalny układ oraz zaplecze socjalno-biurowe umożliwiają natychmiastowe rozpoczęcie działalności bez konieczności ponoszenia dodatkowych nakładów inwestycyjnych.
Zapraszam do kontaktu w celu uzyskania dodatkowych informacji oraz umówienia prezentacji.
Niniejsza oferta ma charakter wyłącznie informacyjny i nie stanowi oferty handlowej w rozumieniu art. 66 1 Kodeksu Cywilnego.


Mapa

Poleć ofertę znajomemu!

Twoje imię i nazwisko:
Twój adres e-mail:
Adres e-mail znajomego:
Treść:
  • Oferta
    Oferta
  • Oferta
    Oferta
  • Oferta
    Oferta
  • Oferta
    Oferta
  • Oferta
    Oferta
  • Oferta
    Oferta
  • Oferta
    Oferta
  • Oferta
    Oferta
  • Oferta
    Oferta
  • Oferta
    Oferta
  • Oferta
    Oferta
  • Oferta
    Oferta
  • Oferta
    Oferta
  • Oferta
    Oferta
  • Oferta
    Oferta
  • Oferta
    Oferta
  • Oferta
    Oferta
  • Oferta
    Oferta
  • Oferta
    Oferta
  • Oferta
    Oferta
    
  
  


Bracia Miklewscy s.c. Miklewska Jolanta Miklewski Ludwik
(zobacz oferty biura)
(zobacz pracowników biura)
ul. Sienkiewicza 3
26-600 Radom
Pokaż dane kontaktowe