Kursy walut(PLN)    4.75 4.76 5.41 4.38
Znajdź na mapie
Typ Cena od Powierzchnia od
do do
Oferta nr 589-15879WYŁĄCZNOŚĆ
Rodzaj obiektuDomy
Kategoriaszeregowiec
Typwynajem
Regionśląskie
MiejscowośćTarnowskie Góry
UlicaŚródmieście
WalutaPLN
Cena4 500 PLN
Pow.działki(m2)190
Cena za m2 36 PLN
Powierzchnia124.61
Pokoje4
Materiałceramika
Rok budowy2024
Nr oferty589-15879
Data2026-01-09
Licencja zawodowa19936
AgentWojtacha Aleksandra
Emailbiuro@wb.nieruchomosci.pl
Licencja agenta19936
Innewoda,gaz,prąd,kanalizacja,meble

Opis

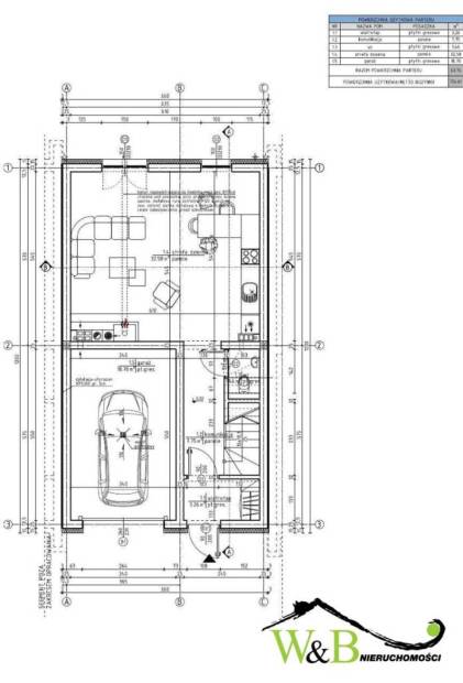
Na wynajem dom w zabudowie szeregowej o powierzchni 124,61 m2, położony w centrum Tarnowskich Gór.
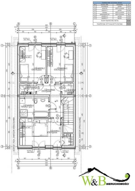
Funkcjonalny rozkład przestrzenny mieszkania.Na parter składają się salon z aneksem kuchennym  oraz wyjściem na taras, wiatrołap oraz wc.Na piętrze znajdują się trzy sypialnie, garderoba, łazienka oraz pomieszczenie gospodarcze. W bryle budynku garaż.
Dom w części umeblowany (kuchnia, łazienka) i wyposażony (sprzęt AGD w kuchni). 
Droga wewnętrzna osiedla oraz chodniki wybrukowane, dla samochodów ażurowy podjazd.
Dom położony na działce o powierzchni ok 190 m2.
Bardzo atrakcyjna lokalizacja - centrum miasta, niedaleko od rynku Tarnowskich Gór. Dookoła wysoko rozwinięta infrastruktura handlowo-usługowa. W pobliżu również drogi krajowe, które ułatwiają dogodny dojazd do sąsiednich miast.
Serdecznie zapraszamy do oględzin.
Powyższa oferta ma charakter informacyjny i nie stanowi oferty handlowej w rozumieniu art.66 1 kodeksu cywilnego oraz innych właściwych przepisów prawnych.
Jako biuro oferujemy Państwu kompleksową obsługę poprzez:
- wybór najodpowiedniejszej dla Państwa nieruchomości,
- pomoc w uzyskaniu najbardziej korzystnego finansowania,
- pomoc w załatwieniu wszelkich formalności związanych z przeniesieniem własności (dokumenty do aktu notarialnego, przepisanie mediów, kwestie związane z podatkiem od nieruchomości).
Zapraszamy do współpracy.
Zachęcamy do zapoznania się z innymi naszymi ofertami na www.wb.nieruchomosci.pl


Poleć ofertę znajomemu!

Twoje imię i nazwisko:
Twój adres e-mail:
Adres e-mail znajomego:
Treść:
  • Oferta
    Oferta
  • Oferta
    Oferta
  • Oferta
    Oferta
  • Oferta
    Oferta
  • Oferta
    Oferta
  • Oferta
    Oferta
  • Oferta
    Oferta
  • Oferta
    Oferta
  • Oferta
    Oferta
  • Oferta
    Oferta
  • Oferta
    Oferta
  • Oferta
    Oferta
  • Oferta
    Oferta
    
  
  


W&B Nieruchomości s.c.
(zobacz oferty biura)
(zobacz pracowników biura)
ul. Rynek 2/1
42 - 60 Tarnowskie Góry
Pokaż dane kontaktowe